Foto leveres af Google Street View og kan være upræcist:
Kontor til leje, Århus C, Mejlgade
Mejlgade, 8000 Århus C- Kontor til leje
- 72 m2
Mejlgade, 8000 Århus C
- Kontor til leje
- 72 m2
Få mere info
Du linkes til en anden portal, som evt. kan kræve betaling eller oprettelse
Kontor til leje, Århus C, Mejlgade
Erhvervslejemål med charmerende og historiske detaljer
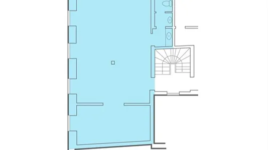
I charmerende bevaringsværdig ejendom fra 1810, har du nu muligheden for at leje dette fine erhvervslejemål. Lejemålet er 72 m² og er beliggende på 1. sal i ejendommen. Indgangen finder du via den hyggelige baggård, og lejemålet ligger i ejendommens forhus med vinduer ud mod Mejlgade. Lokalerne fremstår lyse med trægulve og sprossede vinduer. Man har bibeholdt smukke originale detaljer i form af det synlige bindingsværk, hvilket er med til at skabe en charmende stemning.
Lejemålet indeholder 2 kontorlokaler adskilt af franske døre, tekøkken og toilet. Anvendelsesmulighederne er mange – herunder kontor, klinik, showroom mv. Atmosfæren og stemningen i Mejlgade er helt særlig. Gaden er i de seneste år blomstret op og huser en god blanding af beboelse og erhverv. Her er man er omgivet af butikker, gallerier og hyggelige caféer og restauranter.
Lejemålet indeholder 2 kontorlokaler adskilt af franske døre, tekøkken og toilet. Anvendelsesmulighederne er mange – herunder kontor, klinik, showroom mv. Atmosfæren og stemningen i Mejlgade er helt særlig. Gaden er i de seneste år blomstret op og huser en god blanding af beboelse og erhverv. Her er man er omgivet af butikker, gallerier og hyggelige caféer og restauranter.
Information og data
Dette erhvervslejemål ligger på Mejlgade i Århus C. Århus C har postnummeret 8000, og ligger i kommunen Aarhus, som ligger i Århus. Lokalet er i alt 72 m2.
Dette er et søgeresultat. Klik dig videre til det eksterne website for at få mere info om lokalet.