Foto leveres af Google Street View og kan være upræcist:
Kontor til leje, Århus C, Mejlgade
Mejlgade, 8000 Århus C- Kontor til leje
- 197 m2
Mejlgade, 8000 Århus C
- Kontor til leje
- 197 m2
Få mere info
Du linkes til en anden portal, som evt. kan kræve betaling eller oprettelse
Kontor til leje, Århus C, Mejlgade
Charmerende og lyst kontor i hjertet af Aarhus
I smuk og rolig baggård i det stemningsfulde Latinerkvarter midt i Aarhus, tilbydes nu dette fine kontorlejemål. Lejemålet er placeret på 2. sal i ejendommens baghus og strækker sig videre ind i sidebygningens tagetage.
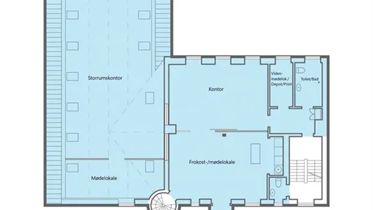
Her finder du entre med toilet/bad samt depot-/serverrum. Et stort lyst forkontor opdelt af glasvæg ind til kantine/frokoststue med køkken og fransk altan ud mod gården. Fra både frokoststue og forkontor ledes man ind i stort åbent og lyst kontorrum med skrå vægge og synlige bjælker samt et mindre mødelokale ligeledes inddelt i glas.
Der hører et ekstra toilet til lejemålet som entreres ude fra trappeopgangen. Vinduer mod 4 verdenshjørner, giver lejemålet et helt fantastisk lysindfald og lokalerne fremstår yderst præsentabel med sprossede vinduer, synlige bjælker og hvidmalede vægge, trægulve. I den charmerende brostensbelagt baggård kan man i sommermånederne nyde frokostpausen i solen ved de opsatte borde-/bænkesæt, som er til fri afbenyttelse for ejendommenes lejere. Her er ligeledes mulighed for at leje parkeringsplads i ejendommens gård. Atmosfæren og stemningen i Mejlgade er helt særlig. Gaden er i de seneste år blomstret op og huser en god blanding af beboelse og erhverv. Her er man er omgivet af butikker, gallerier og hyggelige caféer, kaffebarer og restauranter. Kontakt Tækker Real Estate for en fremvisning af lejemålet.
Her finder du entre med toilet/bad samt depot-/serverrum. Et stort lyst forkontor opdelt af glasvæg ind til kantine/frokoststue med køkken og fransk altan ud mod gården. Fra både frokoststue og forkontor ledes man ind i stort åbent og lyst kontorrum med skrå vægge og synlige bjælker samt et mindre mødelokale ligeledes inddelt i glas.
Der hører et ekstra toilet til lejemålet som entreres ude fra trappeopgangen. Vinduer mod 4 verdenshjørner, giver lejemålet et helt fantastisk lysindfald og lokalerne fremstår yderst præsentabel med sprossede vinduer, synlige bjælker og hvidmalede vægge, trægulve. I den charmerende brostensbelagt baggård kan man i sommermånederne nyde frokostpausen i solen ved de opsatte borde-/bænkesæt, som er til fri afbenyttelse for ejendommenes lejere. Her er ligeledes mulighed for at leje parkeringsplads i ejendommens gård. Atmosfæren og stemningen i Mejlgade er helt særlig. Gaden er i de seneste år blomstret op og huser en god blanding af beboelse og erhverv. Her er man er omgivet af butikker, gallerier og hyggelige caféer, kaffebarer og restauranter. Kontakt Tækker Real Estate for en fremvisning af lejemålet.
Information og data
Dette erhvervslejemål ligger på Mejlgade i Århus C. Århus C har postnummeret 8000, og ligger i kommunen Aarhus, som ligger i Århus. Lokalet er i alt 197 m2.
Dette er et søgeresultat. Klik dig videre til det eksterne website for at få mere info om lokalet.