Foto leveres af Google Street View og kan være upræcist:
Butik til leje, Århus C, Jægergårdsgade 122
Jægergårdsgade 122, 8000 Århus C- Butik til leje
- 642 m2
Jægergårdsgade 122, 8000 Århus C
- Butik til leje
- 642 m2
Få mere info
Du linkes til en anden portal, som evt. kan kræve betaling eller oprettelse
Butik til leje, Århus C, Jægergårdsgade 122
Butik til leje i 8000 Århus C
Moderne erhvervslejemål i gammelt industrikvarter
Sukkerhustoften er den ældste industribygning på Frederiksbjerg og blev opført i 1852. Med kun 2 minutters gåafstand til Bruuns Galleri, charmerende M. P. Bruunsgade og handelsgaden Jægergårdsgade er ny lejer særdeles centralt placeret i midtbyens centrum, omgivet af boligområde, detailhandelsområde, specialforretninger samt byens største indkøbscenter Bruuns Galleri.
Området
Meget central beliggenhed. Lejemålet entreres med både bil, cykel og til fods fra Jægergårdsgade. Gode busforbindelser til og fra lejemålet ligesom pendlere med Letbane og tog kan drage nytte af en super beliggenhed lige over for banegården og Bruuns Galleri. P-pladser kan tillejes i fællesUnik og meget central beliggenhed. Lejemålet entreres med både bil, cykel og til fods fra Jægergårdsgade. Gode busforbindelser til og fra lejemålet ligesom pendlere med Letbane og tog kan drage nytte af en super beliggenhed lige over for banegården og Bruuns Galleri.
P-pladser kan tillejes i fællesgårdmiljø, hvor ny lejers medarbejdere og kunder kan parkere.
Ejendommen
Bygningerne er en del af Århus Olies tidligere produktionsanlæg i Jægergårdsgade. Oprindeligt bestod bygningsmassen af 3 sammenhængende bygninger og et større udvendigt tankanlæg. Bygningerne som er fra begyndelsen af 1900-tallet var i en meget dårlig stand da Mogens de Linde overtog dem i år 2000, men fremstår efter en omfattende ombygning nu som Sukkerhustoften - et moderne erhvervsbyggeri, der bringer minder om et stykke århusiansk industrihistorie. De tilbageværende bygninger er tidligere anvendt som pakhuse og er derfor meget solidt bygget med søjler og dæk af beton. Mure er af murværk og er pudset med samme gule farve som de oprindelige bygninger stod i. Vinduerne er udskiftet til moderne termoruder, der i stil minder om de oprindelige smalle jernsprosse vinduer. Mod Jægergårdsgade er udført en moderne gavl af glas. Omkring bygningen er gården belagt med brosten og græsarealer.
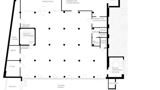
Lejemålet
Lejemålet er indrettet i henhold til aftale med tidligere lejer.Vi glæder os til at fremvise denne enestående og sjældent udbudte beliggenhed.
Sukkerhustoften i Aarhus er fra 1852 og udspringer af Frederiksbjergs første industribyggeri Sukkerhuset. I dag er der rent og roligt ved Sukkerhustoften på Frederiksbjerg, og fra de omkringliggende lejligheders baggårdshaver er der udsigt til den store gule bygning. Men sådan har der ikke altid været i denne ende af Jægergårdsgade. Tværtimod. Gennem årtier vendte lejlighederne ind mod snævre baggårde i et gammelt industriområde, og over området hang lugten fra oliemøllen, som aarhusianerne kaldte den tidligere Aarhus Oliefabrik.
Selv om Sukkerhustoften ikke længere lugter af industri, er vidnesbyrdet om den aarhusianske industrihistorie ikke forsvundet. I dag fremstår bygningen som et moderne erhvervshus og en naturlig del af Frederiksbjergs charmerende handelsgader og miljøet omkring Bruuns Galleri. Men Sukkerhustoften udspringer fra den ældste industribygning på Frederiksbjerg, og historien er stadig til stede i arkitekturen, ingeniørarbejdet og materialevalget. Det var afgørende at sikre både udtrykket og arven, da Byggeselskabet Mogens de Linde i 2000 påbegynde renovering af den forfaldne ejendom.
Sukkerhustoften opføres som udbygning til det første fabriksbyggeri i et lille industrikvarter, der opstår i anden halvdel af 1800-tallet mellem banegården og havnen. Gennem sine første 40 år fungerer bygningen skiftevis som klædefabrik, sukkerraffinaderi og siden kaserne, indtil den i 1892 bliver købt af Aarhus Oliefabrik og brugt som pakhus og produktionsanlæg. Og oliemøllen har virkelig været noget, når det gælder byens industrihistorie. På sit højdepunkt i slutningen af det 19. og begyndelsen af det 20. århundrede er den en af byens største arbejdspladser og beskæftiger hver 10. arbejder i Aarhus på sine to fabriksanlæg, der ligger på havnen og i Jægergårdsgade. Selvom den sidste olie for længst er presset i Sukkerhustoften, har funktionen som lager efterladt sig flere spor, som stadig kan ses i dag i den moderniserede bygning.
Luft, lys og lyd er afgørende i dag
I dag ligger Sukkerhustoften stadig centralt i Aarhus og er indrettet som moderne kontor med plads til hæve-sænkeborde, fladskærme og fleksible mødelokaler. Men bygningens arv og historie er ikke til at komme udenom. Indenfor vidner lange rækker af massive paddehat-formede betonpiller om, at gulvene oprindeligt er bygget til et pakhus – blandt andet blev der i sin tid opbevaret 1.400 tons sesamfrø i bygningen. Også de gamle, riflede jernplader, der blev brugt som underlag til at køre datidens tunge sækkevogne med metalhjul på, er bevaret og brugt som inddækning i vinduerne i den restaurerede bygning. Netop vinduerne – eller manglen på samme – er et andet eksempel på bygningens fortid. For i en lagerbygning fra 1800-tallet var der ikke brug for vinduer, som der er det i en moderne kontorbygning i dag.
Sukkerhustoften er den ældste industribygning på Frederiksbjerg og blev opført i 1852. Med kun 2 minutters gåafstand til Bruuns Galleri, charmerende M. P. Bruunsgade og handelsgaden Jægergårdsgade er ny lejer særdeles centralt placeret i midtbyens centrum, omgivet af boligområde, detailhandelsområde, specialforretninger samt byens største indkøbscenter Bruuns Galleri.
Området
Meget central beliggenhed. Lejemålet entreres med både bil, cykel og til fods fra Jægergårdsgade. Gode busforbindelser til og fra lejemålet ligesom pendlere med Letbane og tog kan drage nytte af en super beliggenhed lige over for banegården og Bruuns Galleri. P-pladser kan tillejes i fællesUnik og meget central beliggenhed. Lejemålet entreres med både bil, cykel og til fods fra Jægergårdsgade. Gode busforbindelser til og fra lejemålet ligesom pendlere med Letbane og tog kan drage nytte af en super beliggenhed lige over for banegården og Bruuns Galleri.
P-pladser kan tillejes i fællesgårdmiljø, hvor ny lejers medarbejdere og kunder kan parkere.
Ejendommen
Bygningerne er en del af Århus Olies tidligere produktionsanlæg i Jægergårdsgade. Oprindeligt bestod bygningsmassen af 3 sammenhængende bygninger og et større udvendigt tankanlæg. Bygningerne som er fra begyndelsen af 1900-tallet var i en meget dårlig stand da Mogens de Linde overtog dem i år 2000, men fremstår efter en omfattende ombygning nu som Sukkerhustoften - et moderne erhvervsbyggeri, der bringer minder om et stykke århusiansk industrihistorie. De tilbageværende bygninger er tidligere anvendt som pakhuse og er derfor meget solidt bygget med søjler og dæk af beton. Mure er af murværk og er pudset med samme gule farve som de oprindelige bygninger stod i. Vinduerne er udskiftet til moderne termoruder, der i stil minder om de oprindelige smalle jernsprosse vinduer. Mod Jægergårdsgade er udført en moderne gavl af glas. Omkring bygningen er gården belagt med brosten og græsarealer.
Lejemålet
Lejemålet er indrettet i henhold til aftale med tidligere lejer.Vi glæder os til at fremvise denne enestående og sjældent udbudte beliggenhed.
Sukkerhustoften i Aarhus er fra 1852 og udspringer af Frederiksbjergs første industribyggeri Sukkerhuset. I dag er der rent og roligt ved Sukkerhustoften på Frederiksbjerg, og fra de omkringliggende lejligheders baggårdshaver er der udsigt til den store gule bygning. Men sådan har der ikke altid været i denne ende af Jægergårdsgade. Tværtimod. Gennem årtier vendte lejlighederne ind mod snævre baggårde i et gammelt industriområde, og over området hang lugten fra oliemøllen, som aarhusianerne kaldte den tidligere Aarhus Oliefabrik.
Selv om Sukkerhustoften ikke længere lugter af industri, er vidnesbyrdet om den aarhusianske industrihistorie ikke forsvundet. I dag fremstår bygningen som et moderne erhvervshus og en naturlig del af Frederiksbjergs charmerende handelsgader og miljøet omkring Bruuns Galleri. Men Sukkerhustoften udspringer fra den ældste industribygning på Frederiksbjerg, og historien er stadig til stede i arkitekturen, ingeniørarbejdet og materialevalget. Det var afgørende at sikre både udtrykket og arven, da Byggeselskabet Mogens de Linde i 2000 påbegynde renovering af den forfaldne ejendom.
Sukkerhustoften opføres som udbygning til det første fabriksbyggeri i et lille industrikvarter, der opstår i anden halvdel af 1800-tallet mellem banegården og havnen. Gennem sine første 40 år fungerer bygningen skiftevis som klædefabrik, sukkerraffinaderi og siden kaserne, indtil den i 1892 bliver købt af Aarhus Oliefabrik og brugt som pakhus og produktionsanlæg. Og oliemøllen har virkelig været noget, når det gælder byens industrihistorie. På sit højdepunkt i slutningen af det 19. og begyndelsen af det 20. århundrede er den en af byens største arbejdspladser og beskæftiger hver 10. arbejder i Aarhus på sine to fabriksanlæg, der ligger på havnen og i Jægergårdsgade. Selvom den sidste olie for længst er presset i Sukkerhustoften, har funktionen som lager efterladt sig flere spor, som stadig kan ses i dag i den moderniserede bygning.
Luft, lys og lyd er afgørende i dag
I dag ligger Sukkerhustoften stadig centralt i Aarhus og er indrettet som moderne kontor med plads til hæve-sænkeborde, fladskærme og fleksible mødelokaler. Men bygningens arv og historie er ikke til at komme udenom. Indenfor vidner lange rækker af massive paddehat-formede betonpiller om, at gulvene oprindeligt er bygget til et pakhus – blandt andet blev der i sin tid opbevaret 1.400 tons sesamfrø i bygningen. Også de gamle, riflede jernplader, der blev brugt som underlag til at køre datidens tunge sækkevogne med metalhjul på, er bevaret og brugt som inddækning i vinduerne i den restaurerede bygning. Netop vinduerne – eller manglen på samme – er et andet eksempel på bygningens fortid. For i en lagerbygning fra 1800-tallet var der ikke brug for vinduer, som der er det i en moderne kontorbygning i dag.
Information og data
Dette erhvervslejemål, som også kan anvendes til Showroom eller Restaurant, ligger på Jægergårdsgade i Århus C. Århus C har postnummeret 8000, og ligger i kommunen Aarhus, som ligger i Århus. Lokalet er i alt 642 m2.