Foto leveres af Google Street View og kan være upræcist:
Butik til leje, Kolding,
, 6000 Kolding- Butik til leje
- 114 m2
- 10.659 kr. per måned
, 6000 Kolding
- Butik til leje
- 114 m2
- 10.659 kr. per måned
Kontakt udlejeren nu
Du linkes til en anden portal, som evt. kan kræve betaling eller oprettelse
Butik til leje, Kolding,
Fakta
- 290466
- Butik
- Restaurant
- Klinik
- 114 m2
- 127.908 kr.
- 10.659 kr.
- 1.122 kr.
KONTAKT UDLEJEREN NU
Du linkes til en anden portal, som evt. kan kræve betaling eller oprettelse
Butik til leje i 6000 Kolding
Dette moderne og attraktive lejemål, er beliggende i hjertet af Kolding, og er en del af det seneste byforskønnelsesprojekt i Kolding Bymidte.
Byforskønnelsesprojektet har været medvirkende til at styrke bymidtens identitet, med fokus på at integrere bydesign, arkitektur og bæredygtige løsninger.
I området har der ligeledes været fokus på at forbedre trafikflowet samt skabe mere plads til udeservicering.
De nye bymidterammer indbyder til byliv og et samlingspunkt for restauranter, specialforretninger, cafeér mv.
Lejemålet Klostergade 2, st. tv., Kolding byder, udover en meget attraktiv beliggenhed, også på nogle moderne og indbydende rammer, med eksempelvis store facadevinduer direkte ud mod Klostergade.
De mange og store facadevinduer gør lejemålet velegnet til udstilling af varer og sikrer dig en god synlighed.
Lejemålet har senest været anvendt som isbutik inklusiv eget produktionskøkken.
Lokalerne henvender sig derfor yderst godt til både en traditionel butik eller restaurant/café.
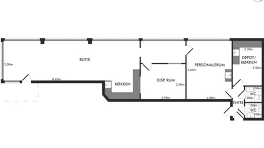
Lejemålet er indrettet med et stort regulært lokale med gode facadevinduer, baglokale/personalerum, køkken og toilet. Endvidere er der stort depot/lager i kælderen på 32 m².
Der er parkeringsmulighed i parkeringskælderen, Klostergaarden, som er beliggende i gåafstand til lejemålet.
Er du på udkig efter et flot og velbeliggende lejemål i et attraktivt område ved Kolding gågade, så er Klostergade 2, st. tv. et besøg værd.
Byforskønnelsesprojektet har været medvirkende til at styrke bymidtens identitet, med fokus på at integrere bydesign, arkitektur og bæredygtige løsninger.
I området har der ligeledes været fokus på at forbedre trafikflowet samt skabe mere plads til udeservicering.
De nye bymidterammer indbyder til byliv og et samlingspunkt for restauranter, specialforretninger, cafeér mv.
Lejemålet Klostergade 2, st. tv., Kolding byder, udover en meget attraktiv beliggenhed, også på nogle moderne og indbydende rammer, med eksempelvis store facadevinduer direkte ud mod Klostergade.
De mange og store facadevinduer gør lejemålet velegnet til udstilling af varer og sikrer dig en god synlighed.
Lejemålet har senest været anvendt som isbutik inklusiv eget produktionskøkken.
Lokalerne henvender sig derfor yderst godt til både en traditionel butik eller restaurant/café.
Lejemålet er indrettet med et stort regulært lokale med gode facadevinduer, baglokale/personalerum, køkken og toilet. Endvidere er der stort depot/lager i kælderen på 32 m².
Der er parkeringsmulighed i parkeringskælderen, Klostergaarden, som er beliggende i gåafstand til lejemålet.
Er du på udkig efter et flot og velbeliggende lejemål i et attraktivt område ved Kolding gågade, så er Klostergade 2, st. tv. et besøg værd.
Information og data
Dette erhvervslejemål, som også kan anvendes til Restaurant eller Klinik, ligger på Klostergade i Kolding. Kolding har postnummeret 6000, og ligger i kommunen Kolding, som ligger i Region Sydjylland. Lokalet er i alt 114 m2. Lejepris: 127.908 kr. per år.