Foto leveres af Google Street View og kan være upræcist:

Erhvervslokaler til leje, Hedehusene, Baldersbuen

Baldersbuen, 2640 Hedehusene
  • Erhvervslokaler til leje
  • 125 m2
  • 10.417 kr. per måned
Erhvervslokaler til leje, Hedehusene, Baldersbuen
Baldersbuen, 2640 Hedehusene
  • Erhvervslokaler til leje
  • 125 m2
  • 10.417 kr. per måned
Få mere info
Du linkes til en anden portal, som evt. kan kræve betaling eller oprettelse

Erhvervslokaler til leje, Hedehusene, Baldersbuen

Fakta

  • 312352
  • Erhvervslokaler
  • 1.3.2026
  • 125 m2
  • 125.000 kr.
  • 10.417 kr.
  • 1.000 kr.
  • 6

Pænt domicil i en ejendom som er en er del af en ingeniørvirksomhed

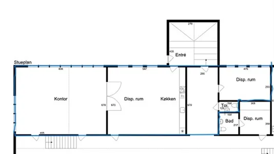
Rustik look med et meget stort lyst repræsentativ lokale (evt. showrum) på 56 m2 med redigen skydevæg (foto) , herudover køkken/alrum 39 m2 (foto) samt to mindre rum (kontor og lager) og et lille toilet. Arealet er i prospekt vist med blå linje. Nedjustering af areal er muligt, og muligvis også hvis kun det store 56m2 rum ønskes (kontorfællesskab med et ingeniørfirma).

Information og data

Dette erhvervslejemål ligger på Baldersbuen i Hedehusene. Hedehusene har postnummeret 2640, og ligger i kommunen Høje Taastrup, som ligger i Storkøbenhavn. Lokalet er i alt 125 m2. Lejepris: 125.000 kr. per år. Der medfølger 6 parkeringspladser til ejendommen.