Foto leveres af Google Street View og kan være upræcist:
Erhvervslokaler til leje, Horsens, Østerhåbsvej 85D 8700 Horsens
Østerhåbsvej 85D 8700 Horsens, 8700 Horsens- Erhvervslokaler til leje
- 600 m2
- 20.000 kr. per måned
Østerhåbsvej 85D 8700 Horsens, 8700 Horsens
- Erhvervslokaler til leje
- 600 m2
- 20.000 kr. per måned
Få mere info
Du linkes til en anden portal, som evt. kan kræve betaling eller oprettelse
Erhvervslokaler til leje, Horsens, Østerhåbsvej 85D 8700 Horsens
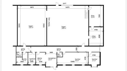
Velbeliggende erhvervsejendom udlejes til kontor - produktionon og lager mv.
Fremstillet i utrolig flot Arkitektonisk og fungsionelt design ca 200 m2 kontor og velfærd.
Har tekøkken m/opvaskemaskine - toilet og badefaciliteter
400m2 produktion /lager mv.
Månedlig husleje kr. 20.000,00 + moms, exl. vand - el og varme.
Lokalerne bør absolut ses ved fremvisning.
Afstanden til E 45 ca. 5km - bybus 200m
Har tekøkken m/opvaskemaskine - toilet og badefaciliteter
400m2 produktion /lager mv.
Månedlig husleje kr. 20.000,00 + moms, exl. vand - el og varme.
Lokalerne bør absolut ses ved fremvisning.
Afstanden til E 45 ca. 5km - bybus 200m
Information og data
Dette erhvervslejemål ligger på Østerhåbsvej 85D 8700 Horsens i Horsens. Horsens har postnummeret 8700, og ligger i kommunen Horsens, som ligger i Region Midtjylland. Lokalet er i alt 600 m2. Lejepris: 240.000 kr. per år.