Foto leveres af Google Street View og kan være upræcist:

Erhvervslokaler til leje, København K, Toldbodgade

Toldbodgade, 1000-1499 København K
  • Erhvervslokaler til leje
  • Ca. 185 m2
  • Ca. 28.000 kr. per måned
Erhvervslokaler til leje, København K, Toldbodgade
Toldbodgade, 1000-1499 København K
  • Erhvervslokaler til leje
  • Ca. 185 m2
  • Ca. 28.000 kr. per måned
Få mere info
Du linkes til en anden portal, som evt. kan kræve betaling eller oprettelse

Erhvervslokaler til leje, København K, Toldbodgade

PRO-UDLEJER

Læs mere

Fakta

  • 316992
  • Erhvervslokaler
  • Ca. 185 m2
  • Ca. 333.000 kr.
  • Ca. 28.000 kr.
  • Ca. 2.000 kr.

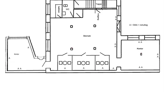
Toldbodgade 51 D stuen.

Et unikt kontorlejemål med atmosfære og suveræn beliggenhed, med Amalienborg som nabo
og overfor til Amaliehaven og Operahuset.Lejemålet ligger i en smuk, historisk ejendom, der tidligere husede Toldbod Dampmølle. Ejendommen er i dag gennem renoveret og moderniseret med stor respekt for dens oprindelige arkitektur. Den står smukt med synlige, gamle bjælker og med alle moderne faciliteter.

Ejendommen har fibernet fra TDC og Global Connect. Beliggenhed: 500 m. fra Marmorkirkens Metro. 300 m til Kvæsthusmolens parkeringshus med 500 pladser.Se prospekt for mere information her

Markedsindsigt: Denne ejendom er identificeret via vores realtids-overvågning af ejendomsmarkedet. Vi samler udbuddet fra hele landet i dit dashboard – herunder muligheder, der ikke altid er synlige på traditionelle portaler. Reagér straks på friske data før konkurrenterne.