Foto leveres af Google Street View og kan være upræcist:
Erhvervslokaler til leje, Middelfart,
, 5500 Middelfart- Erhvervslokaler til leje
, 5500 Middelfart
- Erhvervslokaler til leje
Få mere info
Du linkes til en anden portal, som evt. kan kræve betaling eller oprettelse
Erhvervslokaler til leje, Middelfart,
Erhvervslokaler til leje i 5500 Middelfart
kan nu tilbyde et nybygget erhvervslokale på Gimbels Gyde i Middelfart.
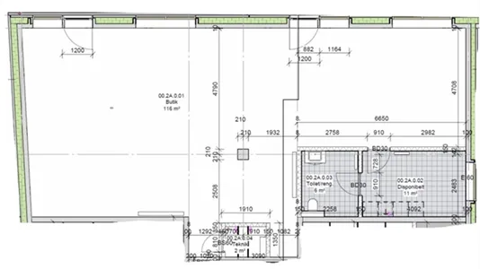
Erhvervslejemålet er beliggende i en større udlejningsejendom og udgør 171 m2. Ejendommen tilbyder et større grundareal, med gode parkeringsmuligheder.
Lokalet har adressen Gimbels Gyde 2A som fremstår ny bygget, og er færdigstillet og klar til udlejning i starten af Januar. Her er højt til loftet, lyst og indbydende, der tilhører desuden et nyt toilet og køkken. Som giver en masse muligheder til anvendelsen af lokalet.
Overalt er der gode lysforhold pga. store vinduespartier samt lyse væge. Lejemålet har en perfekt opdeling til en bred anvendelse som f.eks. Kontor, Cafe, frisør, klinik eller lignende.
Vi kan altid kontaktes på tlf. +, der er både mulighed for fysisk og digital fremvisning.
Erhvervslejemålet er beliggende i en større udlejningsejendom og udgør 171 m2. Ejendommen tilbyder et større grundareal, med gode parkeringsmuligheder.
Lokalet har adressen Gimbels Gyde 2A som fremstår ny bygget, og er færdigstillet og klar til udlejning i starten af Januar. Her er højt til loftet, lyst og indbydende, der tilhører desuden et nyt toilet og køkken. Som giver en masse muligheder til anvendelsen af lokalet.
Overalt er der gode lysforhold pga. store vinduespartier samt lyse væge. Lejemålet har en perfekt opdeling til en bred anvendelse som f.eks. Kontor, Cafe, frisør, klinik eller lignende.
Vi kan altid kontaktes på tlf. +, der er både mulighed for fysisk og digital fremvisning.
Information og data
Dette erhvervslejemål ligger på Gimbels Gyde i Middelfart. Middelfart har postnummeret 5500, og ligger i kommunen Middelfart, som ligger på Fyn.
DATA MØRKELAGT: Kun for mennesker – Robotterne er blokeret
Vi har bevidst fjernet alle data, så hverken Google eller AI-bots kan finde frem til udlejeren via os. Spørger du en AI, vil den være negativ eller sige, at lejemålet ikke kan findes. Det er din garanti for eksklusivitet. Mens algoritmerne leder i blinde, får du direkte adgang til udlejer – før alle dem, der ikke bruger os.