Foto leveres af Google Street View og kan være upræcist:

Erhvervslokaler til leje, Sakskøbing, Sukkerfabrikken

Sukkerfabrikken, 4990 Sakskøbing
  • Erhvervslokaler til leje
  • 500 - 2.880 m2
  • 60.000 kr. per måned
Erhvervslokaler til leje, Sakskøbing, Sukkerfabrikken
Sukkerfabrikken, 4990 Sakskøbing
  • Erhvervslokaler til leje
  • 500 - 2.880 m2
  • 60.000 kr. per måned
Få mere info
Du linkes til en anden portal, som evt. kan kræve betaling eller oprettelse

Erhvervslokaler til leje, Sakskøbing, Sukkerfabrikken

Fakta

  • 124862
  • Erhvervslokaler
  • 500 - 2.880 m2
  • 250 kr.
  • 20

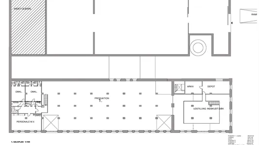
Unikke kontor, produktions- og lagerlokaler

2900 m2 store opvarmede produktions- og lagerhaller med mulighed for kontor, kantine og velfærdsfaciliteter. Her får du effektive moderne produktionslokaler beliggende i helt unikke rammer. Loftshøjde hhv. 5 og 8 meter. Lejemålet kan opdeles.
Kontakt os via mail eller telefon.

Information og data

Dette erhvervslejemål ligger på Sukkerfabrikken i Sakskøbing. Sakskøbing har postnummeret 4990, og ligger i kommunen Guldborgsund, som ligger på Region Sjælland. Lokalet er i alt 2880 m2. Lejepris: 720.000 kr. per år. Der medfølger 20 parkeringspladser til ejendommen.