Foto leveres af Google Street View og kan være upræcist:
Kontorfællesskab til leje, Randers C
8900 Randers C- Kontorfællesskab til leje
8900 Randers C
- Kontorfællesskab til leje
Kontakt udlejeren nu
Du linkes til en anden portal, som evt. kan kræve betaling eller oprettelse
Kontorfællesskab til leje, Randers C
Fakta
- 283483
- Kontorfællesskab
- Ikke angivet
KONTAKT UDLEJEREN NU
Du linkes til en anden portal, som evt. kan kræve betaling eller oprettelse
Ingen binding, kontor til 3.950 kr.
For kun 1.975 kr. per person kan du leje dit eget private kontorlokale i Randers! Det er det perfekte valg for dig, der søger en attraktiv og budgetvenlig løsning.
Her får du også:
All inclusive: Hos Copenhagen Real Estate er vores lejere i fokus. EasyOffice kontorfællesskaber sørger for alle detaljer, så du kan koncentrere dig om din forretning. I prisen er inkluderet internet, el, vand og varme samt rengøring af fællesarealerne.
Central beliggenhed i Randers: Kontorfællesskabet er tæt på Randers hyggelige gågademiljø med butikker og caféer. Ejendommen har gode tilkørselsforhold og mulighed for at leje p-licens direkte ved ejendommen.
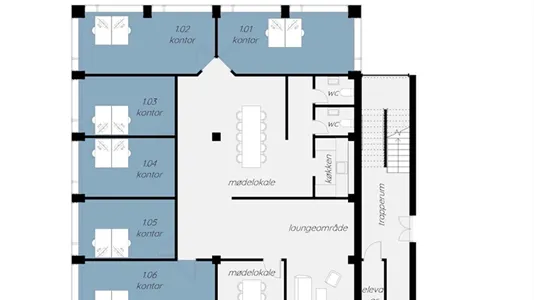
Ubegrænset adgang til mødelokalerne og fælles faciliteter: Med et kontorlokale i Randers EasyOffice får du ikke kun dit eget arbejdsområde, du får også ubegrænset adgang til vores mødelokaler på tværs af 7 byer fordelt på 100+ lejemål. Dette gør det let at mødes og samarbejde med dine klienter. Vores kontorhotel tilbyder moderne fælles faciliteter, herunder mødelokaler, hyggelige loungeområder og et fælles køkken.
Fleksibel lejekontrakt: Vi tilbyder fleksible lejekontrakter, hvor du selv bestemmer tidshorisonten. Du kan tilpasse lejeperioden efter dine behov uden at være bundet af lange kontrakter.
Unik kontorbygning: Ejendommen er en flot hvidpudset bygning, med et unikt, moderne arkitektonisk udtryk, som fremstår nyindrettet både indvendig og udvendig.
Se mere om kontorfællesskabet her.
Depositum: 3 kr.
Her får du også:
All inclusive: Hos Copenhagen Real Estate er vores lejere i fokus. EasyOffice kontorfællesskaber sørger for alle detaljer, så du kan koncentrere dig om din forretning. I prisen er inkluderet internet, el, vand og varme samt rengøring af fællesarealerne.
Central beliggenhed i Randers: Kontorfællesskabet er tæt på Randers hyggelige gågademiljø med butikker og caféer. Ejendommen har gode tilkørselsforhold og mulighed for at leje p-licens direkte ved ejendommen.
Ubegrænset adgang til mødelokalerne og fælles faciliteter: Med et kontorlokale i Randers EasyOffice får du ikke kun dit eget arbejdsområde, du får også ubegrænset adgang til vores mødelokaler på tværs af 7 byer fordelt på 100+ lejemål. Dette gør det let at mødes og samarbejde med dine klienter. Vores kontorhotel tilbyder moderne fælles faciliteter, herunder mødelokaler, hyggelige loungeområder og et fælles køkken.
Fleksibel lejekontrakt: Vi tilbyder fleksible lejekontrakter, hvor du selv bestemmer tidshorisonten. Du kan tilpasse lejeperioden efter dine behov uden at være bundet af lange kontrakter.
Unik kontorbygning: Ejendommen er en flot hvidpudset bygning, med et unikt, moderne arkitektonisk udtryk, som fremstår nyindrettet både indvendig og udvendig.
Se mere om kontorfællesskabet her.
Depositum: 3 kr.
Information og data
Dette erhvervslejemål ligger i Randers C. Randers C har postnummeret 8900, og ligger i kommunen Randers, som ligger i Randers. Lokalet er i alt 1 m2.