Foto leveres af Google Street View og kan være upræcist:
Kontor til leje, Aulum, Holstebrovej
Holstebrovej, 7490 Aulum- Kontor til leje
- 60 - 1.375 m2
- 31.250 kr. per måned

Holstebrovej, 7490 Aulum
- Kontor til leje
- 60 - 1.375 m2
- 31.250 kr. per måned
FÅ MERE INFO OM LOKALET
Du linkes til en anden portal, som evt. kan kræve betaling eller oprettelse
Kontor til leje, Aulum, Holstebrovej
Fakta
- 291305
- Kontor
- Lager
- Kontorfællesskab
- Ja
- Ja
- 60 - 1.375 m2
- 272,72 kr.
FÅ MERE INFO OM LOKALET
Du linkes til en anden portal, som evt. kan kræve betaling eller oprettelse
Attraktive kontor- og lagerlokaler til leje tæt på Holstebro-motorvejen i Aulum
Leder du efter lyse og rummelige kontorer kombineret med funktionelle lagerfaciliteter?
Disse fleksible lejemål i Aulum tilbyder ideelle rammer til både administration, logistik og lager med mulighed for at tilpasse og opdele lokalerne, så de passer til din virksomheds behov.
Ejendommen på Holstebrovej 1-3 er placeret i et veludbygget industriområde med nem adgang til motorvej 18, centralt mellem Holstebro og Herning.
Lokalerne byder blandt andet på:
• Stort, lyst showroom eller mødelokale med glaspartier
• Gode udearealer med parkeringspladser
• Fælles kantine
• Mulighed for pick & pack, distribution og lagerløsninger
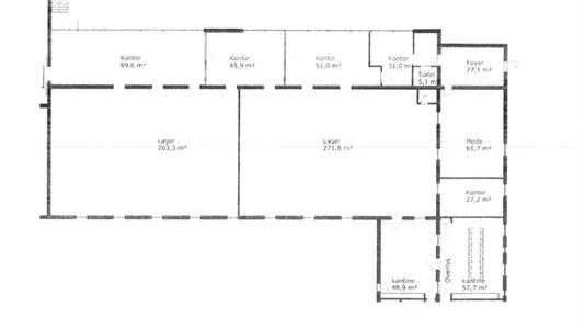
Lejemålet kan anvendes som kontor, lager eller kontorfællesskab og har en samlet størrelse på op til 1.375 m².
Lokalerne kan opdeles efter behov – lejen for lager starter ved 250 kr. og for kontor ved 375 kr./m² ekskl. drift.
Disse fleksible lejemål i Aulum tilbyder ideelle rammer til både administration, logistik og lager med mulighed for at tilpasse og opdele lokalerne, så de passer til din virksomheds behov.
Ejendommen på Holstebrovej 1-3 er placeret i et veludbygget industriområde med nem adgang til motorvej 18, centralt mellem Holstebro og Herning.
Lokalerne byder blandt andet på:
• Stort, lyst showroom eller mødelokale med glaspartier
• Gode udearealer med parkeringspladser
• Fælles kantine
• Mulighed for pick & pack, distribution og lagerløsninger
Lejemålet kan anvendes som kontor, lager eller kontorfællesskab og har en samlet størrelse på op til 1.375 m².
Lokalerne kan opdeles efter behov – lejen for lager starter ved 250 kr. og for kontor ved 375 kr./m² ekskl. drift.
Services:
Bredbånd, Eget firmaskilt ved hoveddør, Filserver adgang, Køkken/frokoststue, Lagerplads, Parkeringspladser
Information og data
Dette erhvervslejemål, som også kan anvendes til Lager eller Kontorfællesskab, ligger på Holstebrovej i Aulum. Aulum har postnummeret 7490, og ligger i kommunen Herning, som ligger i Region Midtjylland. Lokalet er i alt 1375 m2. Lejepris: 375.000 kr. per år.