Foto leveres af Google Street View og kan være upræcist:

Kontor til leje, Ballerup, Vej ikke angivet

Vej ikke angivet, 2750 Ballerup
  • Kontor til leje
  • 1.066 m2
  • 89.366 kr. per måned
Kontor til leje, Ballerup, Vej ikke angivet
Vej ikke angivet, 2750 Ballerup
  • Kontor til leje
  • 1.066 m2
  • 89.366 kr. per måned
Få mere info
Du linkes til en anden portal, som evt. kan kræve betaling eller oprettelse

Kontor til leje, Ballerup, Vej ikke angivet

Copenhagen Real Estate
Susanne Skouenborg
tlf: +45 30 20 45 07
Se email-adressexxxxxxxxxxxxxxxx

PRO-UDLEJER

Læs mere

Læs om udlejer

Fakta

  • 299934
  • Kontor
  • 1.066 m2
  • 1.072.392 kr.
  • 89.366 kr.
  • 1.006 kr.

Stort og moderne kontorlejemål på op til 1.066 m² med attraktiv beliggenhed i Ballerup

Nyistandsat lejemål i velbeliggende ejendom


  • Muligt at leje op til 1.066 m² kontor
  • Moderne indretning med fleksible arbejdspladser
  • Lejemålene er istandsat i smagfuld stil
  • Mulighed for leje af p-pladser foran ejendommen
  • Tæt på Ring 4 og E45

Ejendommen, der for nyligt er istandsat, er beliggende i Ballerup
i et attraktivt erhvervsområde. Området har god infrastruktur og
grønne arealer tæt på. Hvis man er i bil kommer man hurtigt til Tempovej fra enten Ring 4 eller E45 og kommer man med S-tog er man blot en gåtur fra lejemålet. Ejendommen er to etager høj og en del af en større lagerejendom.
Ved første møde med lejemålet bliver man hurtigt klar over at der tale om lejemål, som er stilfuldt indrettet og i god kvalitet.

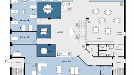
Ejendommen har et fint atrie, der med sit ovenlys byder gæster og medarbejdere velkommen. Det er muligt at leje i alt 1.066 m². I stueplan er der nyt køkken med tilhørende spiseområde, flere større kontorer og enkelte mødelokaler.
Stueplan har en kombination af nye tæppefliser og LVT-gulve.

På 1. sal er der også nyt køkken i samme stil som i stueplan, samt forskellige størrelser kontorer. Trægulvene er bevaret og har fået en slibning og
en behandling, så de i dag står som nye. Udenfor ejendommen er der tilhørende parkeringspladser. Det er som lejer muligt at koble sig på frokostordning
der vil blive leveret fra en af ejendommens øvrige lejere. På den måde slipper man helt for selv at skulle afsætte tid til dette og man kan blot nyde sin frokostpause.

Depositum: null kr.

Information og data

Dette erhvervslejemål ligger i Ballerup. Ballerup har postnummeret 2750, og ligger i kommunen Ballerup, som ligger i Storkøbenhavn. Lokalet er i alt 1066 m2. Lejepris: 1.072.392 kr. per år.