Foto leveres af Google Street View og kan være upræcist:
    
Kontor til leje, Herlev, Lyskær 1
Lyskær 1, 2730 Herlev- Kontor til leje
- 687 m2
- 56.964 kr. per måned
 
            
                Lyskær 1, 2730 Herlev
                
            - Kontor til leje
- 687 m2
- 56.964 kr. per måned
            Kontakt udlejeren nu
            Du linkes til en anden portal, som evt. kan kræve betaling eller oprettelse
Kontor til leje, Herlev, Lyskær 1
Fakta
- 248072
- Kontor
- 687 m2
- 683.565 kr.
- 56.964 kr.
- 880.047 kr.
- 73.337 kr.
- 995 kr.
- 1.281 kr.
                    KONTAKT UDLEJEREN NU
                    
            
        Du linkes til en anden portal, som evt. kan kræve betaling eller oprettelse
                På 1. etage udlejes 687 skønne m² med stor synlighed ud til Ring3 i Herlev
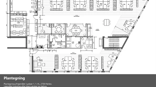
            Lejemålet
Lejemålet på 687 m² er beliggende på 1. etage, i et meget velfungerende flerbrugerhus. Lejemålet er indrettet med storrumskontor. Lejemålet egner sig fx godt til at afskærme og lave mindre eller større kontorgrupper med borde, loungeområde, el. lign. Der er åbent og lyst tekøkken, flere møderum / stillerum samt teknikrum og toilet- og badfaciliteter. Lejemålet overtages nyistandsat og indrettes efter lejers ønsker og behov. Der er plads til ca. 28 arbejdspladser.
Ejendommen
Ejendommen på Lyskær 1 er et stort flerbrugerhus. Ejendommen fremstår både udvendigt og indvendigt yderst præsentabel. Som lejer i denne ejendom får du adgang til fri afbenyttelse af et stort mødelokale med plads til 24 personer samt et stort konferencelokale der ligger i forlængelse af kantinen – begge med AV-udstyr. Huset tilbyder også kantine med cateringfirma, der giver adgang til køb af tilberedt frokost hver dag, samt mulighed for bestilling af mødeforplejning til dine møder.
Parkering
Parkering er altafgørende, og derfor lægger vi stor vægt på, at dette er tilgængeligt for vores lejere. Der er både mulighed for at parkere i terrænet samt i vores store parkeringskælder. Vi tilbyder også udlejning af p-pladser med ladestander til din el-bil.
Beliggenhed
Ejendommen har facade direkte ud til Ring3, der dagligt har enormt mange forbipasserende biler, hvorfor dette giver anledning til stor eksponering. Der er busstoppested lige uden for døren og du når Herlev S-tog Station på kun 10 minutters gang. Yderligere får den kommende letbane et stoppested lige uden for ejendommen.
            
        
            Lejemålet på 687 m² er beliggende på 1. etage, i et meget velfungerende flerbrugerhus. Lejemålet er indrettet med storrumskontor. Lejemålet egner sig fx godt til at afskærme og lave mindre eller større kontorgrupper med borde, loungeområde, el. lign. Der er åbent og lyst tekøkken, flere møderum / stillerum samt teknikrum og toilet- og badfaciliteter. Lejemålet overtages nyistandsat og indrettes efter lejers ønsker og behov. Der er plads til ca. 28 arbejdspladser.
Ejendommen
Ejendommen på Lyskær 1 er et stort flerbrugerhus. Ejendommen fremstår både udvendigt og indvendigt yderst præsentabel. Som lejer i denne ejendom får du adgang til fri afbenyttelse af et stort mødelokale med plads til 24 personer samt et stort konferencelokale der ligger i forlængelse af kantinen – begge med AV-udstyr. Huset tilbyder også kantine med cateringfirma, der giver adgang til køb af tilberedt frokost hver dag, samt mulighed for bestilling af mødeforplejning til dine møder.
Parkering
Parkering er altafgørende, og derfor lægger vi stor vægt på, at dette er tilgængeligt for vores lejere. Der er både mulighed for at parkere i terrænet samt i vores store parkeringskælder. Vi tilbyder også udlejning af p-pladser med ladestander til din el-bil.
Beliggenhed
Ejendommen har facade direkte ud til Ring3, der dagligt har enormt mange forbipasserende biler, hvorfor dette giver anledning til stor eksponering. Der er busstoppested lige uden for døren og du når Herlev S-tog Station på kun 10 minutters gang. Yderligere får den kommende letbane et stoppested lige uden for ejendommen.
Information og data
Dette erhvervslejemål ligger på Lyskær i Herlev. Herlev har postnummeret 2730, og ligger i kommunen Herlev, som ligger i Storkøbenhavn. Lokalet er i alt 687 m2. Lejepris: 683.565 kr. per år.
 
                    
                 
                    
                 
                    
                 
                    
                 
                    
                 
                    
                 
                    
                 
                    
                 
                    
                 
                    
                 
                    
                 
                    
                 
                    
                 
                    
                 
                    
                