Foto leveres af Google Street View og kan være upræcist:
Kontor til leje, Herlev, Marielundvej 46
Marielundvej 46, 2730 Herlev- Kontor til leje
- 173 m2
- 13.827 kr. per måned

Marielundvej 46, 2730 Herlev
- Kontor til leje
- 173 m2
- 13.827 kr. per måned
FÅ MERE INFO OM LOKALET
Du linkes til en anden portal, som evt. kan kræve betaling eller oprettelse
Kontor til leje, Herlev, Marielundvej 46
Fakta
- 291502
- Kontor
- 173 m2
- 165.924 kr.
- 13.827 kr.
- 959,09 kr.
FÅ MERE INFO OM LOKALET
Du linkes til en anden portal, som evt. kan kræve betaling eller oprettelse
Fint kontorlejemål med egne faciliteter
God kombination af storrumskontor, mødelokale og lettere lager/depot.
Området:
Lejemålet er en del af Herlev’s eftertragtede erhvervskvarter, tæt på Nordre Ringvej, 15 min. fra Rådhuspladsen i København, ca. 250 meter fra den kommende Letbane Station, som bliver etableret ved krydset Lyskær/Nordre Ringvej, samt ca. 900 meter fra motorvejen mod København/Odense.
Ejendommen:
Marielundvej 46 blev bygget i årene 1966/68 og renoveret med alufacader og flotte glasindgangspartier i år 2000. Ejendommen er samlet på 23.082 m² og er udlejet til ca. 45 forskellige lejere.
Som det fremgår af billederne har ejendommen 2 hyggelige haver med bænke, som lejerne bruger til at spise frokost i om sommeren m.m.
Alle opgange er udsmykket med kunstværker af kunstneren Maria Dubin, som har fortolket Karen Blixens blomster i hendes have. Kunstværkerne kommer direkte fra Karen Blixen Museet før de blev købt at Udlejer, til forskønnelse af vores indgangspartier/opgange.
Parkerings- og trafikforhold:
Der er omkring ejendommen ca. 400 gratis parkeringspladser til brug for ejendommens lejere og gæster, heraf 12 pladser med ladestandere.
Der bliver etableret en Letbane station, ca. 250 meter fra ejendommen, ved krydset Lyskær/Nordre Ringvej. Letbanen kommer til at køre hvert 5. minut indenfor normal arbejdstid, og hvert 10 minut udenfor normal arbejdstid.
Der går ligeledes en Bus 155 fra Marielundvej til Herlev Station.
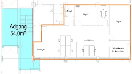
Lejemålet:
Lejemålet er placeret i stueplan i opgang 46C, tæt på ejendommens største parkeringsplads med 8 ladestandere. Lejemålet tilgås via en fælles præsentabelt glasindgangsparti med de øvrige lejere i opgangen.
Ved ankomst til lejemålet træder man direkte ind i lejemålets storrumskontor, hvor nuværende lejer har gjort plads til et hyggeligt loungeområde og 7 arbejdsstationer, opdelt i 2 ’afdelinger’ med en skillevæg i delvist glas. Fra storrumskontoret kan man tilgå toilet og garderobe, to lagerlokaler, mødelokale med plads til 4, samt tekøkken og frokoststue. Har man ikke brug for alt lagerpladsen, kan disse tænkes ind som større mødelokaler.
I forbindelse med nuværende lejers indflytning i 2020 blev der lagt nye sortnisterede tæppefliser, og forud for nye lejers indflytning vil belysning blive skiftet til LED. Har kommende lejer ønsker til lejemålets indretning, vil dette blive set positivt på.
Størrelse:
Lejemålet udgør samlet 173 m².
Leje:
Den månedlige leje udgør kr. 13.827,04, med tillæg af aconto drifts- og varmeudgifter.
Svarende til en leje på kr. 959,60 pr. m².
Driftsudgifter:
Lejer betaler en forholdsmæssig andel af ejendommens driftsudgifter, ejendomsskatter og –afgifter, forsikring, vandforbrug, renovation, fælles el-forbrug, ejendomsservice/vicevært, snerydning, renholdelse og vedligeholdelse af udvendige arealer, herunder service og vedligeholdelse af installationer, fællesrum, samt udarbejdelse af regnskaber for drifts- og fællesudgifter og administration m.m.
Lejer opkræves et aconto driftsbidrag på kr. 118,37 pr. m², svarende til kr. 1.705,61 pr. måned.
Varme:
Der udarbejdes årligt (kalenderåret) et varmeregnskab, som fordeler varmeudgifterne på alle lejemål.
Lejer opkræves et aconto varmebidrag på kr. 54,43 pr. m², svarende til kr. 784,29 pr. måned.
El:
Der er separat elmåler til alle lejemål.
Regulering af leje:
Basislejen reguleres årligt, pr. 1. januar, med udviklingen i nettoprisindekset, dog minimum 2%, første gang pr. 1. januar 2026.
Depositum:
Der beregnes et depositum svarende til 6 måneder, af den til enhver tid værende basisleje.
Moms:
Alle ydelser tillægges den til enhver tid gældende moms.
Vedligeholdelse:
Indvendig vedligeholdelse af det lejede påhviler lejeren.
Udvendig vedligeholdelse påhviler udlejeren.
Energimærke:
Ejendommen er pr. 30. maj 2023 gennemgået og har af Energistyrelsen fået Energimærket ”C”.
Opsigelse:
I forbindelse med indgåelse af lejekontrakten giver Lejer til Udlejer en gensidig uopsigelig lejeperiode, hvorefter lejemålet kan opsiges med 6 måneders varsel.
Indflytning:
Efter aftale.
Området:
Lejemålet er en del af Herlev’s eftertragtede erhvervskvarter, tæt på Nordre Ringvej, 15 min. fra Rådhuspladsen i København, ca. 250 meter fra den kommende Letbane Station, som bliver etableret ved krydset Lyskær/Nordre Ringvej, samt ca. 900 meter fra motorvejen mod København/Odense.
Ejendommen:
Marielundvej 46 blev bygget i årene 1966/68 og renoveret med alufacader og flotte glasindgangspartier i år 2000. Ejendommen er samlet på 23.082 m² og er udlejet til ca. 45 forskellige lejere.
Som det fremgår af billederne har ejendommen 2 hyggelige haver med bænke, som lejerne bruger til at spise frokost i om sommeren m.m.
Alle opgange er udsmykket med kunstværker af kunstneren Maria Dubin, som har fortolket Karen Blixens blomster i hendes have. Kunstværkerne kommer direkte fra Karen Blixen Museet før de blev købt at Udlejer, til forskønnelse af vores indgangspartier/opgange.
Parkerings- og trafikforhold:
Der er omkring ejendommen ca. 400 gratis parkeringspladser til brug for ejendommens lejere og gæster, heraf 12 pladser med ladestandere.
Der bliver etableret en Letbane station, ca. 250 meter fra ejendommen, ved krydset Lyskær/Nordre Ringvej. Letbanen kommer til at køre hvert 5. minut indenfor normal arbejdstid, og hvert 10 minut udenfor normal arbejdstid.
Der går ligeledes en Bus 155 fra Marielundvej til Herlev Station.
Lejemålet:
Lejemålet er placeret i stueplan i opgang 46C, tæt på ejendommens største parkeringsplads med 8 ladestandere. Lejemålet tilgås via en fælles præsentabelt glasindgangsparti med de øvrige lejere i opgangen.
Ved ankomst til lejemålet træder man direkte ind i lejemålets storrumskontor, hvor nuværende lejer har gjort plads til et hyggeligt loungeområde og 7 arbejdsstationer, opdelt i 2 ’afdelinger’ med en skillevæg i delvist glas. Fra storrumskontoret kan man tilgå toilet og garderobe, to lagerlokaler, mødelokale med plads til 4, samt tekøkken og frokoststue. Har man ikke brug for alt lagerpladsen, kan disse tænkes ind som større mødelokaler.
I forbindelse med nuværende lejers indflytning i 2020 blev der lagt nye sortnisterede tæppefliser, og forud for nye lejers indflytning vil belysning blive skiftet til LED. Har kommende lejer ønsker til lejemålets indretning, vil dette blive set positivt på.
Størrelse:
Lejemålet udgør samlet 173 m².
Leje:
Den månedlige leje udgør kr. 13.827,04, med tillæg af aconto drifts- og varmeudgifter.
Svarende til en leje på kr. 959,60 pr. m².
Driftsudgifter:
Lejer betaler en forholdsmæssig andel af ejendommens driftsudgifter, ejendomsskatter og –afgifter, forsikring, vandforbrug, renovation, fælles el-forbrug, ejendomsservice/vicevært, snerydning, renholdelse og vedligeholdelse af udvendige arealer, herunder service og vedligeholdelse af installationer, fællesrum, samt udarbejdelse af regnskaber for drifts- og fællesudgifter og administration m.m.
Lejer opkræves et aconto driftsbidrag på kr. 118,37 pr. m², svarende til kr. 1.705,61 pr. måned.
Varme:
Der udarbejdes årligt (kalenderåret) et varmeregnskab, som fordeler varmeudgifterne på alle lejemål.
Lejer opkræves et aconto varmebidrag på kr. 54,43 pr. m², svarende til kr. 784,29 pr. måned.
El:
Der er separat elmåler til alle lejemål.
Regulering af leje:
Basislejen reguleres årligt, pr. 1. januar, med udviklingen i nettoprisindekset, dog minimum 2%, første gang pr. 1. januar 2026.
Depositum:
Der beregnes et depositum svarende til 6 måneder, af den til enhver tid værende basisleje.
Moms:
Alle ydelser tillægges den til enhver tid gældende moms.
Vedligeholdelse:
Indvendig vedligeholdelse af det lejede påhviler lejeren.
Udvendig vedligeholdelse påhviler udlejeren.
Energimærke:
Ejendommen er pr. 30. maj 2023 gennemgået og har af Energistyrelsen fået Energimærket ”C”.
Opsigelse:
I forbindelse med indgåelse af lejekontrakten giver Lejer til Udlejer en gensidig uopsigelig lejeperiode, hvorefter lejemålet kan opsiges med 6 måneders varsel.
Indflytning:
Efter aftale.
Information og data
Dette erhvervslejemål ligger på Marielundvej i Herlev. Herlev har postnummeret 2730, og ligger i kommunen Herlev, som ligger i Storkøbenhavn. Lokalet er i alt 173 m2. Lejepris: 165.924 kr. per år.