Foto leveres af Google Street View og kan være upræcist:
Kontor til leje, Hørsholm, Kærvej 32
Kærvej 32, 2970 Hørsholm- Kontor til leje
- 190 m2

Kærvej 32, 2970 Hørsholm
- Kontor til leje
- 190 m2
FÅ MERE INFO OM LOKALET
Du linkes til en anden portal, som evt. kan kræve betaling eller oprettelse
Kontor til leje, Hørsholm, Kærvej 32
Fakta
- 70815
- Kontor
- Showroom
- Kontorfællesskab
- Ja
- 15
- 190 m2
- Ikke angivet
- 10
FÅ MERE INFO OM LOKALET
Du linkes til en anden portal, som evt. kan kræve betaling eller oprettelse
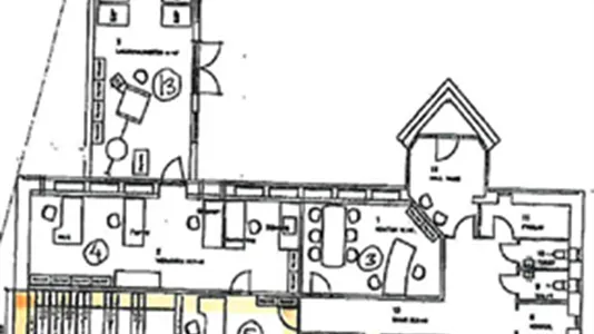
Flotte kontorer med mulighed for lager eller klinik
LÆS MERE OG SE FLERE BILLEDER PÅ WWW.LEJEMÅL.NU
I Hørsholms erhvervsområde er op til 190 kvm præsentable lokaler af høj kvalitet i nylig moderniseret ejendom, til leje med fælles køkken, toiletter, arkiv og garderobe. Lokalerne er velegnet til virksomhed som udover kontor, har behov for showroom, klinik, let lager eller montage. Gratis parkering og tæt på motorvej og offentlig transport.
I Hørsholms erhvervsområde er op til 190 kvm præsentable lokaler af høj kvalitet i nylig moderniseret ejendom, til leje med fælles køkken, toiletter, arkiv og garderobe. Lokalerne er velegnet til virksomhed som udover kontor, har behov for showroom, klinik, let lager eller montage. Gratis parkering og tæt på motorvej og offentlig transport.
Services:
Adresseservice, Bredbånd, Eget firmaskilt ved hoveddør, Kantine, Konferencefaciliteter, Køkken/frokoststue, Lagerplads, Parkeringspladser
Information og data
Dette erhvervslejemål, som også kan anvendes til Showroom eller Kontorfællesskab, ligger på Kærvej i Hørsholm. Hørsholm har postnummeret 2970, og ligger i kommunen Hørsholm, som ligger i Storkøbenhavn. Lokalet er i alt 190 m2. Der medfølger 10 parkeringspladser til ejendommen.