Foto leveres af Google Street View og kan være upræcist:
Kontor til leje, Hvidovre,
, 2650 Hvidovre- Kontor til leje
- 144 m2
, 2650 Hvidovre
- Kontor til leje
- 144 m2
Kontakt udlejeren nu
Du linkes til en anden portal, som evt. kan kræve betaling eller oprettelse
Kontor til leje, Hvidovre,
Fakta
- 202371
- Kontor
- 144 m2
- Ikke angivet
- 6
KONTAKT UDLEJEREN NU
Du linkes til en anden portal, som evt. kan kræve betaling eller oprettelse
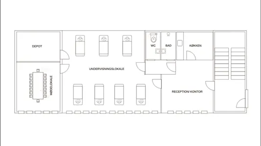
Kontor, showroom og undervisningslokale
Dette erhvervslejemål, som kan anvendes til Undervisning, ligger i Avedøreholme i Hvidovre.
Lejemålet er beliggende på 1. sal og der er adgang via trappen.
Optimalt til virksomheder der tilbyder kurser i massage eller lignende, ved interesse kan da inkludereres 7 massage brikse til rådighed. I alt indeholder dette lejemål:
Entre/ reception, køkken, toilet og bad, stort åbent lokale, ekstra stor møderum/ kontor og depotrum.
Lejemålet er beliggende på 1. sal og der er adgang via trappen.
Optimalt til virksomheder der tilbyder kurser i massage eller lignende, ved interesse kan da inkludereres 7 massage brikse til rådighed. I alt indeholder dette lejemål:
Entre/ reception, køkken, toilet og bad, stort åbent lokale, ekstra stor møderum/ kontor og depotrum.
Information og data
Dette erhvervslejemål ligger på Avedøreholmen i Hvidovre. Hvidovre har postnummeret 2650, og ligger i kommunen Hvidovre, som ligger i Storkøbenhavn. Lokalet er i alt 144 m2. Der medfølger 6 parkeringspladser til ejendommen.