Foto leveres af Google Street View og kan være upræcist:
Kontor til leje, København K, Danneskiold-Samsøes Allé 3
Danneskiold-Samsøes Allé 3, 1000-1499 København K- Kontor til leje
- 927 m2

Danneskiold-Samsøes Allé 3, 1000-1499 København K
- Kontor til leje
- 927 m2
FÅ MERE INFO OM LOKALET
Du linkes til en anden portal, som evt. kan kræve betaling eller oprettelse
Kontor til leje, København K, Danneskiold-Samsøes Allé 3
Fakta
- 255065
- Kontor
- Showroom
- Restaurant
- 927 m2
- Ikke angivet
- 4.000 kr.
FÅ MERE INFO OM LOKALET
Du linkes til en anden portal, som evt. kan kræve betaling eller oprettelse
Lystøndeskuret: Genopførelse af en historisk bygning på Holmen
Inden længe vender Lystøndeskuret atter tilbage til sine hjemlige omgivelser på Kuglegården. Byggeselskab Mogens de Linde står bag genopførelsen af det bemærkelsesværdige træhus, som gennem 80 år blev anvendt til opbevaring af lystønder, der udsendte lyssignaler i havneforløbet med brændende kul – datidens sømærker. Huset genopføres i dens oprindelige materialer med mulighed for café/ restaurant med udeservering, showroom eller kontor, og vil med sin fantastisk placering ud mod Trangrav kanalen, være et samlingssted for liv og kultur.
Historien
Lystøndeskuret er oprindeligt hjemmehørende på Kuglegården og er én af de mange karakterfulde bygninger, som i nyere tid er forsvundet fra Holmen. Ejendommen blev opført i 1920 af Forsvaret til Fyrvæsenet og blev gennem 80 år anvendt til opbevaring, klargøring, reparation og vedligeholdelse af store bøjer og lystønder. I 1999 sendte Fyrvæsenet en anmodning til Forsvarets Bygningstjeneste om nedrivning af træhuset, der på det tidspunkt ikke længere blev brugt og stod i forfald. Der var råd i træværket flere steder og hul i taget, og en af portene var blæst ned. Blot et år senere blev der givet tilladelse til, at bygningen kunne nedtages med henblik på genopstilling i Ebeltoft. Lystøndeskuret blev forsigtigt skilt ad, pakket ned og derefter foræret til Ebeltoft Kommune i 2001, hvor det blev opmagasineret i en af kommunes ejendomme i en årrække. Projektet blev dog aldrig realiseret og i 2017 foræres de opbevarede bygningsdelene til Byggeselskab Mogens de Linde, som nu vil genopføre Lystøndeskuret i sit hjemmelige miljø. Ved at tilbageføre Lystøndeskuret til Kuglegården genopstår et historisk lag i fortællingen om Holmen, som er med til at levendegøre stedets historie og iscenesætte ankomsten til området.
Området
Kuglegårdens beliggenhed i starten af Holmen – er omgivet af charmerende kanaler. Der er kort afstand til Kongens Nytorv via Inderhavnsbroen og til Christianshavns metrostation langs kanalen. Holmen er med de mange bevarede Forsvarsbygninger og grønne områder en populær oase for kreative virksomheder.
Lystøndeskuret bliver opført med facade mod Trangravpladsen og Danneskiold-Samsøes Allé - ved siden af Værftsbrovagten. Denne centrale placering hvor adgangsvejene i bil og på cykel mellem hhv. indre by, Papirøen, Holmen/Refshaleøen, Amager og Christianshavn mødes. Naboen Papirøen udvikles i disse år med kulturelle tilbud, boliger, hotel og erhverv.
Holmen byder på luft og grønne områder - vi fremhæver Kuglegårdens græsareal med kanoner fra 1800-tallet, samt Operaparkens helt enestående landskab.
Der går busser lige til døren, og p-pladser kan tillejes på området og i p-kælder.
Ejendommen
Lystøndeskuret opføres efter datidens maritime byggeskik, i dens oprindelige materialer, med en karakteristisk buekonstruktion af kraftigt tømmer, betongulv og papdækket tag båret af solide åser. Udvendigt beklædes huset med sorte facadebrædder og hvide rammer om vinduerne. Taget udføres i skiffer eller tagpap og fremstår ligeledes mørkt. Nye vinduer til gulv mod Trangravpladsen giver bygningen en ønsket åben karaktér, og giver mulighed for let cirkulation ind og ud af bygningen. I gavlen mod Trangraven etableres der et kæmpe vinduesparti der sikre udsigt mod Christianshavn og det hyggelige maritime miljø. På den nordlige side af ejendommen, mod Trangravsvej, udgraves der til udendørsserveringsområde, hvorfra parterre kan entreres.
Lystøndeskuret indrettes med utallige referencer til historien og med bevidste moderne bæredygtige og energioptimerende beslutninger.
Lejemålet
Lystøndeskuret overtages nyopført og henvender sig til virksomheder, der ønsker en enestående placering midt i København i en fantastisk sjælden udbudt ejendom. Lystøndeskuret er egnet til café, restaurant, selskabslokaler, kontor, showroom og er således med til at understøtte bylivet på den nye plads for enden af lystbådehavnen. Med mulighed for udeservering på Trangravspladsen i eftermiddags-/aftensol og udsigt til havnen og historiske ejendomme, vurderer vi at Lystøndeskuret hurtigt kan blive en populær destination for københavnere.
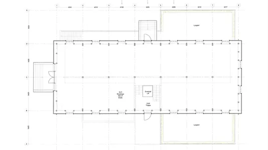
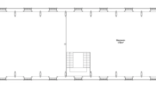
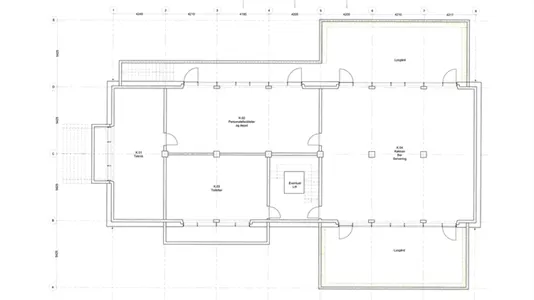
Lejemålet består af ca. 927 m² fordelt på 3 plan heraf, høj kælderplan med vinduer og lysskakter på 359 m², stueplan på 363 m² og en 1. sal på 205 m². 1.salen laves som indskudt dæk på tværs af ejendommen som vist på plantegningen. Ny lejer kan selv have medindflydelse på endelig indretning.
Materialet er udarbejdet med forbehold for ændringer og myndighedsgodkendelse.
Er du interesseret i at høre mere om projektet, er du velkommen til at kontakte os.
Historien
Lystøndeskuret er oprindeligt hjemmehørende på Kuglegården og er én af de mange karakterfulde bygninger, som i nyere tid er forsvundet fra Holmen. Ejendommen blev opført i 1920 af Forsvaret til Fyrvæsenet og blev gennem 80 år anvendt til opbevaring, klargøring, reparation og vedligeholdelse af store bøjer og lystønder. I 1999 sendte Fyrvæsenet en anmodning til Forsvarets Bygningstjeneste om nedrivning af træhuset, der på det tidspunkt ikke længere blev brugt og stod i forfald. Der var råd i træværket flere steder og hul i taget, og en af portene var blæst ned. Blot et år senere blev der givet tilladelse til, at bygningen kunne nedtages med henblik på genopstilling i Ebeltoft. Lystøndeskuret blev forsigtigt skilt ad, pakket ned og derefter foræret til Ebeltoft Kommune i 2001, hvor det blev opmagasineret i en af kommunes ejendomme i en årrække. Projektet blev dog aldrig realiseret og i 2017 foræres de opbevarede bygningsdelene til Byggeselskab Mogens de Linde, som nu vil genopføre Lystøndeskuret i sit hjemmelige miljø. Ved at tilbageføre Lystøndeskuret til Kuglegården genopstår et historisk lag i fortællingen om Holmen, som er med til at levendegøre stedets historie og iscenesætte ankomsten til området.
Området
Kuglegårdens beliggenhed i starten af Holmen – er omgivet af charmerende kanaler. Der er kort afstand til Kongens Nytorv via Inderhavnsbroen og til Christianshavns metrostation langs kanalen. Holmen er med de mange bevarede Forsvarsbygninger og grønne områder en populær oase for kreative virksomheder.
Lystøndeskuret bliver opført med facade mod Trangravpladsen og Danneskiold-Samsøes Allé - ved siden af Værftsbrovagten. Denne centrale placering hvor adgangsvejene i bil og på cykel mellem hhv. indre by, Papirøen, Holmen/Refshaleøen, Amager og Christianshavn mødes. Naboen Papirøen udvikles i disse år med kulturelle tilbud, boliger, hotel og erhverv.
Holmen byder på luft og grønne områder - vi fremhæver Kuglegårdens græsareal med kanoner fra 1800-tallet, samt Operaparkens helt enestående landskab.
Der går busser lige til døren, og p-pladser kan tillejes på området og i p-kælder.
Ejendommen
Lystøndeskuret opføres efter datidens maritime byggeskik, i dens oprindelige materialer, med en karakteristisk buekonstruktion af kraftigt tømmer, betongulv og papdækket tag båret af solide åser. Udvendigt beklædes huset med sorte facadebrædder og hvide rammer om vinduerne. Taget udføres i skiffer eller tagpap og fremstår ligeledes mørkt. Nye vinduer til gulv mod Trangravpladsen giver bygningen en ønsket åben karaktér, og giver mulighed for let cirkulation ind og ud af bygningen. I gavlen mod Trangraven etableres der et kæmpe vinduesparti der sikre udsigt mod Christianshavn og det hyggelige maritime miljø. På den nordlige side af ejendommen, mod Trangravsvej, udgraves der til udendørsserveringsområde, hvorfra parterre kan entreres.
Lystøndeskuret indrettes med utallige referencer til historien og med bevidste moderne bæredygtige og energioptimerende beslutninger.
Lejemålet
Lystøndeskuret overtages nyopført og henvender sig til virksomheder, der ønsker en enestående placering midt i København i en fantastisk sjælden udbudt ejendom. Lystøndeskuret er egnet til café, restaurant, selskabslokaler, kontor, showroom og er således med til at understøtte bylivet på den nye plads for enden af lystbådehavnen. Med mulighed for udeservering på Trangravspladsen i eftermiddags-/aftensol og udsigt til havnen og historiske ejendomme, vurderer vi at Lystøndeskuret hurtigt kan blive en populær destination for københavnere.
Lejemålet består af ca. 927 m² fordelt på 3 plan heraf, høj kælderplan med vinduer og lysskakter på 359 m², stueplan på 363 m² og en 1. sal på 205 m². 1.salen laves som indskudt dæk på tværs af ejendommen som vist på plantegningen. Ny lejer kan selv have medindflydelse på endelig indretning.
Materialet er udarbejdet med forbehold for ændringer og myndighedsgodkendelse.
Er du interesseret i at høre mere om projektet, er du velkommen til at kontakte os.
Information og data
Dette erhvervslejemål, som også kan anvendes til Showroom eller Restaurant, ligger på Danneskiold-Samsøes Allé i København K. København K har postnummeret 1434, og ligger i kommunen København, som ligger i København. Lokalet er i alt 927 m2.