Foto leveres af Google Street View og kan være upræcist:
Kontor til leje, København K, Krudtløbsvej 73A
Krudtløbsvej 73A, 1000-1499 København K- Kontor til leje
- 137 m2

Krudtløbsvej 73A, 1000-1499 København K
- Kontor til leje
- 137 m2
FÅ MERE INFO OM LOKALET
Du linkes til en anden portal, som evt. kan kræve betaling eller oprettelse
Kontor til leje, København K, Krudtløbsvej 73A
Fakta
- 304924
- Kontor
- 137 m2
- Ikke angivet
- 2.200 kr.
FÅ MERE INFO OM LOKALET
Du linkes til en anden portal, som evt. kan kræve betaling eller oprettelse
Quintus Bastion, Krudtløbsvej 73A, 1439 København K
Eksklusivt lejemål på Quintus Bastion
Med en helt særlig beliggenhed i København, nemlig Quintus Bastion, Holmen, udlejer vi nu et charmerende kontor i de fredede og historiske bygninger og med en rolig beliggenhed lige ved vandet, Refshaleøen, Christianshavn og indre by. Der er udsigt til husbåde og Batteri Sixtus.
Området
Quintus Bastion er en del af Københavns befæstning og daterer sig tilbage til 1600-tallet. Sammen med Nyholm er Quintus Bastion den nordligste del af Holmens fæstningsværker. Omkranset af vand og husbåde byder Quintus Bastion på hyggelig maritim Holmen stemning i en klasse helt for sig.
Quintus Bastion er fredet og omfattet af museumsloven, hvilket betyder, at det kun er eksisterende bygninger, der kan benyttes til erhverv og bolig. Mod syd for Bastionen findes det fredede voldområde, der ligeledes er bevaringsværdig, mod Nord ligger Refshaleøen.
Quintus Bastion tilgås med bil via Christianshavn eller Kløvermarken. Christianshavn og Holmen er solidt forbundet via cykel-/gangbroer, således Kongens Nytorv kan nås på blot 10 minutter på cykel. Desuden har Københavns Kommune besluttet at tilføje en ny cykel-/gangbro mellem Refshaleøen og Toldboden, dette projekteres i denne tid. I gå- og cykelafstand findes endvidere både Christianshavns Metro station, havnebussen og busforbindelse 2A.
Ejendommen
Erhvervslejemålet er etableret i en af søværnets tidligere træbygninger og er opført i gedigne materialer til brug for forsvarets mange aktiviteter på Holmen. Quintus Bastion har fået sit navn, fordi det er den femte bastion, der blev opført i fæstningen mod øst. Ordet quintus betyder "den femte" på latin. De danske befæstningsværker blev traditionelt navngivet efter både deres placering og rækkefølge.
Bygningen og resten af Bastionen har gennemgået en gennemgribende renovering i 2017-2019. Af erhvervsnaboer kan nævnes Vandkunsten Arkitekter, Designwerck, Industristål og Georg Stage.
Lejemålet
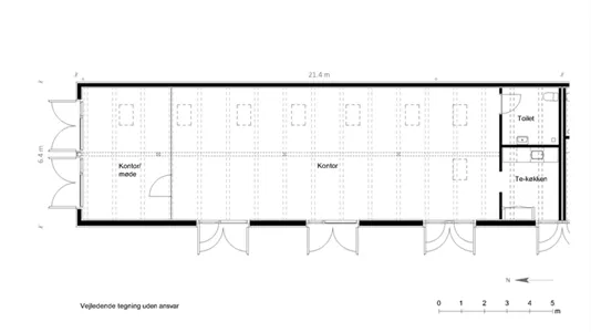
Lejemålet består af 2 lokaler, delt med New Yorker glasvæg, der er varme i gulvet, synligt originalt træværk og murværk, fantastisk lysindfald fra ovenlys i taget samt store vinduer via de historiske portpartier. Udover moderne kontorfaciliteter findes der også toilet med bad og tekøkken i eksklusive materialer.
Med en helt særlig beliggenhed i København, nemlig Quintus Bastion, Holmen, udlejer vi nu et charmerende kontor i de fredede og historiske bygninger og med en rolig beliggenhed lige ved vandet, Refshaleøen, Christianshavn og indre by. Der er udsigt til husbåde og Batteri Sixtus.
Området
Quintus Bastion er en del af Københavns befæstning og daterer sig tilbage til 1600-tallet. Sammen med Nyholm er Quintus Bastion den nordligste del af Holmens fæstningsværker. Omkranset af vand og husbåde byder Quintus Bastion på hyggelig maritim Holmen stemning i en klasse helt for sig.
Quintus Bastion er fredet og omfattet af museumsloven, hvilket betyder, at det kun er eksisterende bygninger, der kan benyttes til erhverv og bolig. Mod syd for Bastionen findes det fredede voldområde, der ligeledes er bevaringsværdig, mod Nord ligger Refshaleøen.
Quintus Bastion tilgås med bil via Christianshavn eller Kløvermarken. Christianshavn og Holmen er solidt forbundet via cykel-/gangbroer, således Kongens Nytorv kan nås på blot 10 minutter på cykel. Desuden har Københavns Kommune besluttet at tilføje en ny cykel-/gangbro mellem Refshaleøen og Toldboden, dette projekteres i denne tid. I gå- og cykelafstand findes endvidere både Christianshavns Metro station, havnebussen og busforbindelse 2A.
Ejendommen
Erhvervslejemålet er etableret i en af søværnets tidligere træbygninger og er opført i gedigne materialer til brug for forsvarets mange aktiviteter på Holmen. Quintus Bastion har fået sit navn, fordi det er den femte bastion, der blev opført i fæstningen mod øst. Ordet quintus betyder "den femte" på latin. De danske befæstningsværker blev traditionelt navngivet efter både deres placering og rækkefølge.
Bygningen og resten af Bastionen har gennemgået en gennemgribende renovering i 2017-2019. Af erhvervsnaboer kan nævnes Vandkunsten Arkitekter, Designwerck, Industristål og Georg Stage.
Lejemålet
Lejemålet består af 2 lokaler, delt med New Yorker glasvæg, der er varme i gulvet, synligt originalt træværk og murværk, fantastisk lysindfald fra ovenlys i taget samt store vinduer via de historiske portpartier. Udover moderne kontorfaciliteter findes der også toilet med bad og tekøkken i eksklusive materialer.
Information og data
Dette erhvervslejemål ligger på Krudtløbsvej i København K. København K har postnummeret 1439, og ligger i kommunen København, som ligger i København. Lokalet er i alt 137 m2.