Foto leveres af Google Street View og kan være upræcist:
Kontor til leje, København K, Nytorv
Nytorv, 1000-1499 København K- Kontor til leje
- Ca. 100 m2
- Ca. 15.500 kr. per måned
Nytorv, 1000-1499 København K
- Kontor til leje
- Ca. 100 m2
- Ca. 15.500 kr. per måned
Få mere info
Du linkes til en anden portal, som evt. kan kræve betaling eller oprettelse
Kontor til leje, København K, Nytorv
Fakta
- 313378
- Kontor
- Klinik
- Ca. 100 m2
- Ca. 185.000 kr.
- Ca. 15.500 kr.
- Ca. 210.000 kr.
- Ca. 17.500 kr.
- Ca. 2.000 kr.
- Ca. 2.000 kr.
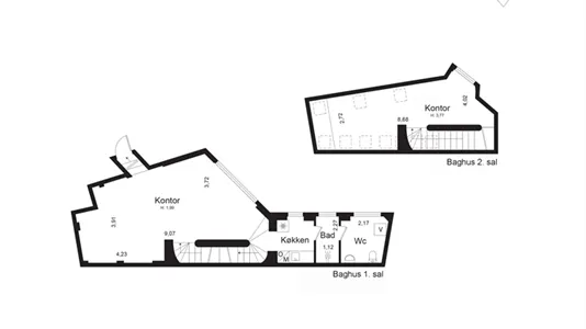
Smuk historiske baghus med charme og sjæl midt i KBH K
Dette smukke røde baghus på Nytorv 15 er en del af en historisk ejendom, hvor den
autentiske charme er bevaret og kombineret med moderne komfort. Ejendommen
ligger tilbagetrukket fra gaden i en rolig og stemningsfuld brostensbelagt gård.
Lejemålet udgør i alt 100 m² fordelt på to plan og fremstår lyst, indbydende og
nyistandsat.
autentiske charme er bevaret og kombineret med moderne komfort. Ejendommen
ligger tilbagetrukket fra gaden i en rolig og stemningsfuld brostensbelagt gård.
Lejemålet udgør i alt 100 m² fordelt på to plan og fremstår lyst, indbydende og
nyistandsat.
Information og data
Dette erhvervslejemål, som også kan anvendes til Klinik ligger på Nytorv i København K. København K har postnummeret 1450, og ligger i kommunen København, som ligger i København. Lokalet er i alt 100 m2. Lejepris: Ca. 185.000 kr. per år.