Foto leveres af Google Street View og kan være upræcist:

Kontor til leje, Odense SØ, Emil Neckelmanns Vej 15 H

Emil Neckelmanns Vej 15 H, 5220 Odense SØ
  • Kontor til leje
  • 123 m2
  • 8.473 kr. per måned
Kontor til leje, Odense SØ, Emil Neckelmanns Vej 15 H
Emil Neckelmanns Vej 15 H, 5220 Odense SØ
  • Kontor til leje
  • 123 m2
  • 8.473 kr. per måned
Kontakt udlejeren nu
Du linkes til en anden portal, som evt. kan kræve betaling eller oprettelse

Kontor til leje, Odense SØ, Emil Neckelmanns Vej 15 H

Heimstaden Erhverv
Morten A.
tlf: 21756610
Se email-adressexxxxxxxxxxxxxxxx

Læs om udlejer

Fakta

  • 265999
  • Kontor
  • 123 m2
  • 101.681,25 kr.
  • 8.473 kr.
  • 825 kr.
KONTAKT UDLEJEREN NU
Du linkes til en anden portal, som evt. kan kræve betaling eller oprettelse

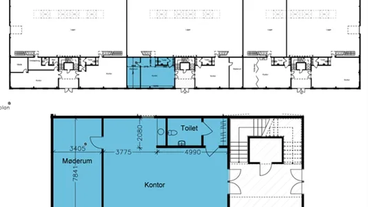
Kontor til leje i 5220 Odense SØ

Mindre kontor i attraktivt erhvervsområde udbydes til leje. Lejemålet er på brutto 123 m² og er beliggende i stor præsentabel ejendom opført i 2009. Lejemålet er indrettet med åbent kontormiljø, mindre te-køkken samt toilet. I kontoret er der tæpper på gulvene, lyddæmpende lofter med indbygget grundbelysning og kabelbakker. Lokalerne fremtræder pæne og velholdte og er indflytningsklar. Tietgenbyen er et nyere erhvervsområde langs den fynske motorvej, der har tiltrukket mange større og mindre virksomheder indenfor såvel kontor-, lager-, produktions- logistikvirksomheder. Der er gode parkeringsforhold på ejendommen.