Foto leveres af Google Street View og kan være upræcist:

Kontor til leje, Odense SØ, Emil Neckelmanns Vej 15 H

Emil Neckelmanns Vej 15 H, 5220 Odense SØ
  • Kontor til leje
  • Ca. 250 m2
  • Ca. 17.000 kr. per måned
Kontor til leje, Odense SØ, Emil Neckelmanns Vej 15 H
Emil Neckelmanns Vej 15 H, 5220 Odense SØ
  • Kontor til leje
  • Ca. 250 m2
  • Ca. 17.000 kr. per måned
Få mere info
Du linkes til en anden portal, som evt. kan kræve betaling eller oprettelse

Kontor til leje, Odense SØ, Emil Neckelmanns Vej 15 H

Heimstaden Erhverv
Morten A.
tlf: 21756610
Se email-adressexxxxxxxxxxxxxxxx

Læs om udlejer

Fakta

  • 279861
  • Kontor
  • Ca. 250 m2
  • Ca. 204.500 kr.
  • Ca. 17.000 kr.
  • Ca. 1.000 kr.

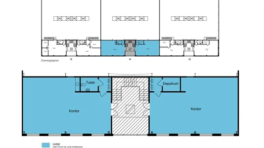
Kontor til leje i 5220 Odense SØ

Lejemålet : Lyst 1.sals godt kontorlejemål på 248 m² , beliggende i præsentabel flerbrugerejendom opført i 2009. Lejemålet er indrettet med flot indgangsparti, to åbne kontormiljøer, mindre te-køkken samt toiletsektion. Lyddæmpende lofter med indbygget fin grundbelysning. Lokalerne fremtræder pæne og velholdte og er indflytningsklare. Der er desuden gode parkeringsforhold på ejendommen.