Foto leveres af Google Street View og kan være upræcist:
Kontor til leje, Vejle Centrum, Lysholt Allé 3
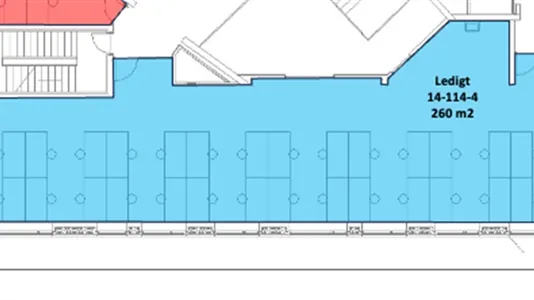
Lysholt Allé 3, 7100 Vejle- Kontor til leje
- 260 m2
- 28.708 kr. per måned
Lysholt Allé 3, 7100 Vejle
- Kontor til leje
- 260 m2
- 28.708 kr. per måned
Få mere info
Du linkes til en anden portal, som evt. kan kræve betaling eller oprettelse
Kontor til leje, Vejle Centrum, Lysholt Allé 3
DANDY Business Park Ejendomme
Tina Pedersen
tlf: 21440430
Se email-adressexxxxxxxxxxxxxxxx
Gå til hjemmesidexxxxxxxxxxxxxxxxx
Tina Pedersen
tlf: 21440430
Se email-adressexxxxxxxxxxxxxxxx
Gå til hjemmesidexxxxxxxxxxxxxxxxx
Læs om udlejer
Fakta
- 315920
- Kontor
- 1.8.2026
- 260 m2
- 344.500 kr.
- 28.708 kr.
- 467.285 kr.
- 38.940 kr.
- 1.325 kr.
- 1.797,25 kr.
- 27
Stort, samlet kontorlokale i Food Innovation House
Plads til at vokse – uden at gå på kompromis
I Food Innovation House har vi nu et lyst og funktionelt kontor klar til en virksomhed, der har brug for lidt mere plads omkring sig.
Her får I:
Op 24-27 arbejdspladser i ét sammenhængende miljø
Masser af dagslys og ro til fordybelse
Eget the-køkken – så hverdagen glider lidt lettere
Fleksibel indretning, der kan tilpasses jeres måde at arbejde på
Her har du et lokale, der bare fungerer, og som kan indrettes på mange måder. Her kan teams sidde og arbejde sammen – og stadig have masser af plads.
Perfekt til scale-ups eller etablerede virksomheder, der er vokset ud af deres nuværende rammer.
Areal: 170 m² kontorplads + 90 m² fællesarealer.
Inkluderet i lejen:
Lejen dækker el, vand, varme og Wi-Fi i fællesområder. Bemærk dog, at internet, strøm og rengøring i selve lejemålet ikke er inkluderet.
Fordele ved at leje hos os:
Receptionistservice i åbningstiden
24/7 adgang til fitnessfaciliteter
Mulighed for attraktiv frokostordning
Unikke mødelokaler i hele DANDY Business Park
Effektiv viceværtsservice
Fællesskab og Netværk
Hos os bliver du en del af et åbent og inspirerende fællesskab. Vi deler viden, skaber relationer og inviterer til løbende arrangementer, der gør dig lidt klogere, lidt sundere – og sikrer, at der er plads til sjov i hverdagen.
Park Benefits
Som lejer får du adgang til vores eksklusive Park Benefits, der giver dine medarbejdere optimale arbejdsforhold. Mødelokaler, forplejning til gæster, frokostordning, fitnesscenter, tøjrens eller strøm til bilen og meget mere.
Økonomiske vilkår:
– Depositum: 6 måneders kontant husleje + 6 måneders depositum til driftsomkostninger
– Opsigelse: 12 måneders opsigelse til et kvartal efter endt bindingsperiode
– Huslejeregulering: NPI (dog minimum 2 %)
Alle priser er ekskl. moms.
I Food Innovation House har vi nu et lyst og funktionelt kontor klar til en virksomhed, der har brug for lidt mere plads omkring sig.
Her får I:
Op 24-27 arbejdspladser i ét sammenhængende miljø
Masser af dagslys og ro til fordybelse
Eget the-køkken – så hverdagen glider lidt lettere
Fleksibel indretning, der kan tilpasses jeres måde at arbejde på
Her har du et lokale, der bare fungerer, og som kan indrettes på mange måder. Her kan teams sidde og arbejde sammen – og stadig have masser af plads.
Perfekt til scale-ups eller etablerede virksomheder, der er vokset ud af deres nuværende rammer.
Areal: 170 m² kontorplads + 90 m² fællesarealer.
Inkluderet i lejen:
Lejen dækker el, vand, varme og Wi-Fi i fællesområder. Bemærk dog, at internet, strøm og rengøring i selve lejemålet ikke er inkluderet.
Fordele ved at leje hos os:
Receptionistservice i åbningstiden
24/7 adgang til fitnessfaciliteter
Mulighed for attraktiv frokostordning
Unikke mødelokaler i hele DANDY Business Park
Effektiv viceværtsservice
Fællesskab og Netværk
Hos os bliver du en del af et åbent og inspirerende fællesskab. Vi deler viden, skaber relationer og inviterer til løbende arrangementer, der gør dig lidt klogere, lidt sundere – og sikrer, at der er plads til sjov i hverdagen.
Park Benefits
Som lejer får du adgang til vores eksklusive Park Benefits, der giver dine medarbejdere optimale arbejdsforhold. Mødelokaler, forplejning til gæster, frokostordning, fitnesscenter, tøjrens eller strøm til bilen og meget mere.
Økonomiske vilkår:
– Depositum: 6 måneders kontant husleje + 6 måneders depositum til driftsomkostninger
– Opsigelse: 12 måneders opsigelse til et kvartal efter endt bindingsperiode
– Huslejeregulering: NPI (dog minimum 2 %)
Alle priser er ekskl. moms.
Information og data
Dette erhvervslejemål ligger på Lysholt Allé i Vejle Centrum. Vejle Centrum har postnummeret 7100, og ligger i kommunen Vejle, som ligger i Vejle. Lokalet er i alt 260 m2. Lejepris: 344.500 kr. per år.