Foto leveres af Google Street View og kan være upræcist:
Lager til leje, København K, Quintus Bastion, Krudtløbsvej 14
Quintus Bastion, Krudtløbsvej 14, 1000-1499 København K- Lager til leje
- 846 m2
Quintus Bastion, Krudtløbsvej 14, 1000-1499 København K
- Lager til leje
- 846 m2
Få mere info
Du linkes til en anden portal, som evt. kan kræve betaling eller oprettelse
Lager til leje, København K, Quintus Bastion, Krudtløbsvej 14
KrudtløbsvejQuintus Bastion
Under Vandkunsten Arkitekter på Quintus Bastion har du nu mulighed for at leje et stort lager. Der er let adgang til lageret med bil/vogn og det entreres enten fra trappe eller mekanisk lift fra terræn til kælderetagen.
Området
Quintus Bastion er en del af Københavns befæstning og daterer sig tilbage til 1600-tallet. Sammen med Nyholm er Quintus Bastion den nordligste del af Holmens fæstningsværker. Omkranset af vand og husbåde byder Quintus Bastion på hyggelig maritim Holmen stemning i en klasse helt for sig.
Quintus Bastion er fredet og omfattet af museumsloven, hvilket betyder, at det kun er eksisterende bygninger, der kan benyttes til erhverv og bolig. Mod syd for Bastionen findes det fredede voldområde, der ligeledes er bevaringsværdig, mod Nord ligger Refshaleøen.
Quintus Bastion tilgås med bil via Christianshavn eller Kløvermarken. Christianshavn og Holmen er solidt forbundet via cykel-/gangbroer, således Kongens Nytorv kan nås på blot 10 minutter på cykel. Desuden har Københavns Kommune besluttet at tilføje en ny cykel-/gangbro mellem Refshaleøen og Toldboden, dette projekteres i denne tid. I gå- og cykelafstand findes endvidere både Christianshavns Metro station, havnebussen og busforbindelse 2A.
Lejemålet
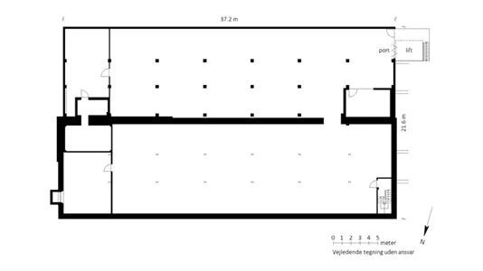
Kælderetagen af Forsvarets tidligere ejendom er indrettet til kælder. Mekanisk lift direkte til indgangsporten gør lageret yderst anvendeligt. Parkering kan tillejes i lejemålets nærhed.
Lageret har beton vægge, lofter, gulv, er indrettet med belysning, radiatorer og aflåselige zoner og rum. Der er ståhøjde i lejemålet, dog med nogle få lavere buer i konstruktionen.
Vi har brugt meget krudt på at skabe et unikt byrum
Hver morgen og aften siden 1788 har der lydt en salut fra kanonerne ovre på Batteriet Sixtus. Og mens nogle går på Noma, sidder andre på kajen med en picnickurv. Holmen er på mange måder et særpræget område. Her er man omringet af vand, grønne oaser og stednavne som Søminegraven og Krudtkøbsvej, der afslører, at Quintus Bastion førhen blev brugt til militære formål. Nu om dage er her helt utroligt fredeligt. Forvandlingen fra søværn og krudtlaboratorium til rekreativt byrum med moderne boliger og erhverv er sket med en enorm respekt for områdets historie. Vi har pillet ned, genbrugt og bygget op - bevaret det bevaringsværdige og håndplukket de materialer, der får det bedste frem i hver eneste bygning.
Quintus Bastion, er et mageløst miks af husbåde, hverdagsliv, virksomheder, kreativitet, krudt og kugler. Stedet har sin helt egen stemning, som vi har arbejdet på at fremhæve siden 1997, hvor Byggeselskab Mogens de Linde købte området af Forsvaret. Året forinden var Holmen lige blevet åbent for civile, og Quintus Bastion var præget af søværnets maskinehaller, magasinbygninger og træbarakker, som i dag er restaureret og omdannet til enestående lejemål - og som i vores optik stadig har Københavns ultimativt bedste beliggenhed.
Området
Quintus Bastion er en del af Københavns befæstning og daterer sig tilbage til 1600-tallet. Sammen med Nyholm er Quintus Bastion den nordligste del af Holmens fæstningsværker. Omkranset af vand og husbåde byder Quintus Bastion på hyggelig maritim Holmen stemning i en klasse helt for sig.
Quintus Bastion er fredet og omfattet af museumsloven, hvilket betyder, at det kun er eksisterende bygninger, der kan benyttes til erhverv og bolig. Mod syd for Bastionen findes det fredede voldområde, der ligeledes er bevaringsværdig, mod Nord ligger Refshaleøen.
Quintus Bastion tilgås med bil via Christianshavn eller Kløvermarken. Christianshavn og Holmen er solidt forbundet via cykel-/gangbroer, således Kongens Nytorv kan nås på blot 10 minutter på cykel. Desuden har Københavns Kommune besluttet at tilføje en ny cykel-/gangbro mellem Refshaleøen og Toldboden, dette projekteres i denne tid. I gå- og cykelafstand findes endvidere både Christianshavns Metro station, havnebussen og busforbindelse 2A.
Lejemålet
Kælderetagen af Forsvarets tidligere ejendom er indrettet til kælder. Mekanisk lift direkte til indgangsporten gør lageret yderst anvendeligt. Parkering kan tillejes i lejemålets nærhed.
Lageret har beton vægge, lofter, gulv, er indrettet med belysning, radiatorer og aflåselige zoner og rum. Der er ståhøjde i lejemålet, dog med nogle få lavere buer i konstruktionen.
Vi har brugt meget krudt på at skabe et unikt byrum
Hver morgen og aften siden 1788 har der lydt en salut fra kanonerne ovre på Batteriet Sixtus. Og mens nogle går på Noma, sidder andre på kajen med en picnickurv. Holmen er på mange måder et særpræget område. Her er man omringet af vand, grønne oaser og stednavne som Søminegraven og Krudtkøbsvej, der afslører, at Quintus Bastion førhen blev brugt til militære formål. Nu om dage er her helt utroligt fredeligt. Forvandlingen fra søværn og krudtlaboratorium til rekreativt byrum med moderne boliger og erhverv er sket med en enorm respekt for områdets historie. Vi har pillet ned, genbrugt og bygget op - bevaret det bevaringsværdige og håndplukket de materialer, der får det bedste frem i hver eneste bygning.
Quintus Bastion, er et mageløst miks af husbåde, hverdagsliv, virksomheder, kreativitet, krudt og kugler. Stedet har sin helt egen stemning, som vi har arbejdet på at fremhæve siden 1997, hvor Byggeselskab Mogens de Linde købte området af Forsvaret. Året forinden var Holmen lige blevet åbent for civile, og Quintus Bastion var præget af søværnets maskinehaller, magasinbygninger og træbarakker, som i dag er restaureret og omdannet til enestående lejemål - og som i vores optik stadig har Københavns ultimativt bedste beliggenhed.
Information og data
Dette erhvervslejemål ligger på Quintus Bastion, Krudtløbsvej i København K. København K har postnummeret 1439, og ligger i kommunen København, som ligger i København. Lokalet er i alt 846 m2.