Foto leveres af Google Street View og kan være upræcist:
Lager til leje, Kolding, Vejlevej
Vejlevej, 6000 Kolding- Lager til leje
- 268 m2
- 12.953 kr. per måned

Vejlevej, 6000 Kolding
- Lager til leje
- 268 m2
- 12.953 kr. per måned
FÅ MERE INFO OM LOKALET
Du linkes til en anden portal, som evt. kan kræve betaling eller oprettelse
Lager til leje, Kolding, Vejlevej
Fakta
- 299920
- Lager
- 268 m2
- 155.436 kr.
- 12.953 kr.
- 579,99 kr.
FÅ MERE INFO OM LOKALET
Du linkes til en anden portal, som evt. kan kræve betaling eller oprettelse
Logistik/produktions-lejemål, direkte til E20/E45 afkørsel Bramdrupdam
Lager til leje nær motorvejen i Kolding
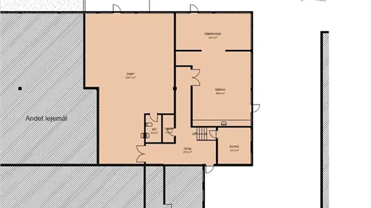
Areal: 268 m²
Beliggenhed: Lageret har en strategisk beliggenhed nær motorvejen i Kolding, hvilket gør det let tilgængeligt og bekvemt for transport og logistikbehov.
Tilstand: Lageret er i fin stand og er velegnet til en bred vifte af lager- og distributionsaktiviteter.
Vognporte: Der er 1 vognport i lageret for nem aflæsning og lastning.
Frihøjde: Variere fra 2,8-3 m
Befæstede arealer: Der er i alt 1.731 m2 som deles med lager A+B+C i ejendommen.
Parkering: Der er fælles grusbelagt areal til parkering.
Personalerum: Et rummeligt personaleområde, perfekt til frokostpauser og møder.
Toilet: Moderne toiletter tilgængelige for medarbejdere og besøgende.
Dette lager tilbyder ikke kun tilstrækkelig plads til opbevaring, men også bekvemmelige faciliteter til personalet og en praktisk beliggenhed tæt på motorvejen, hvilket gør det til en ideel mulighed for virksomheder, der har behov for nem adgang til transportruter.
I samme ejendom finder du allerede etablerede virksomheder som Enemark & Sabroe ApA, IBOB A/S, Larsen Fine Food, Tømrermester Møller, Verisure A/S, Hydroshark samt en dyrlæge. Dette skaber en attraktiv forretningsmæssig synergi og giver mulighed for samarbejde og netværksudvidelse.
Kontakt en af Copenhagen Real Estate medarbejder for en fremvisning eller yderligere information!
Depositum: 38859 kr.
Information og data
Dette erhvervslejemål ligger på Vejlevej i Kolding. Kolding har postnummeret 6000, og ligger i kommunen Kolding, som ligger i Region Sydjylland. Lokalet er i alt 268 m2. Lejepris: 155.436 kr. per år.