Foto leveres af Google Street View og kan være upræcist:

Lager & Kontor til leje, Odense SØ, Emil Neckelmanns Vej 15D

Emil Neckelmanns Vej 15D, 5220 Odense SØ
  • Lager til leje
  • 1.174 m2
  • 62.122 kr. per måned
Lager & Kontor til leje, Odense SØ, Emil Neckelmanns Vej 15D
Emil Neckelmanns Vej 15D, 5220 Odense SØ
  • Lager til leje
  • 1.174 m2
  • 62.122 kr. per måned
Få mere info
Du linkes til en anden portal, som evt. kan kræve betaling eller oprettelse

Lager & Kontor til leje, Odense SØ, Emil Neckelmanns Vej 15D

Heimstaden Erhverv
Morten A.
tlf: 21756610
Se email-adressexxxxxxxxxxxxxxxx

Læs om udlejer

Fakta

  • 293544
  • Lager
  • Kontor
  • 1.174 m2
  • 745.470 kr.
  • 62.122 kr.
  • 495 kr.

Lager & kontor til leje i 5220 Odense SØ

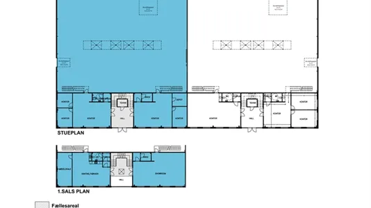
Tietgenbyen. Særdeles præsentabelt velbeliggende erhvervslejemål på 1.174 kvm. fordelt på: 676 kvm. lagerroduktionshal med port på ca. 3,5 x 3,5 meter – i niveau. 7 meter frihøjde til drager. Lageret opvarmes med kaloriferevarme Elforsyning med 25 amp. Ovenlys, samt fin grundbelysning. 498 kvm. administrationsafsnit fordelt på bl.a.: Præsentabelt indgangsområde. 3 storrumskontorer/showroom, flot køkken/kantine, 4 mindre kontorer, mødelokale, depot og arkivrum. Toiletsektioner og bad. Direkte udgang til hallen fra både stueplan og 1.sal. Masser af lysindfald og fin grundbelysning. Lokalerne er lyse, moderne og præsentable, og med mange anvendelsesmuligheder. Gode parkeringsforhold på ejendommen.