Foto leveres af Google Street View og kan være upræcist:
Lager til leje, Søborg, Søborg Hovedgade
Søborg Hovedgade, 2860 Søborg- Lager til leje
- 104 m2
- 7.850 kr. per måned

Søborg Hovedgade, 2860 Søborg
- Lager til leje
- 104 m2
- 7.850 kr. per måned
FÅ MERE INFO OM LOKALET
Du linkes til en anden portal, som evt. kan kræve betaling eller oprettelse
Lager til leje, Søborg, Søborg Hovedgade
Fakta
- 294024
- Lager
- 104 m2
- 94.200 kr.
- 7.850 kr.
- 905,76 kr.
FÅ MERE INFO OM LOKALET
Du linkes til en anden portal, som evt. kan kræve betaling eller oprettelse
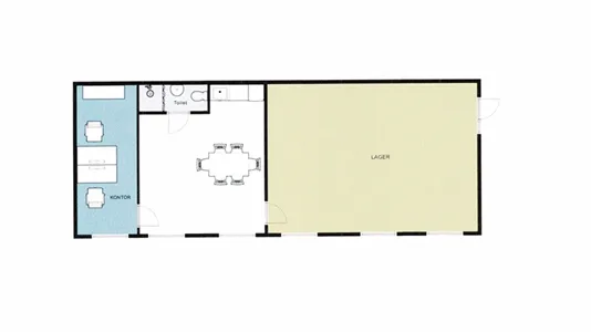
Erhvervslejemål med lager, kontor, toilet og frokoststue
Dette erhvervslejemål er netop blevet ledigt. Før indflytning istandsætter udlejer lokalerne. Lokalet ligger i rolig baggård, tæt på Søborg Hovedgade, Gentofte og København NV. Indflytning forventes omkring 01.10.25. Der er ikke adgang direkte fra forhuset, men via bagvedliggende indkørsel bagom Rema 1000. Leje inkl. drift og aconto varme er 10.870 kr. pr md. ex. moms. Der er mulighed for at leje lidt ekstra lagerplads i garage eller skibscontainer. Bemærk postnummer rettelig er 2870 Dyssegård, Gentofte Kommune.
Information og data
Dette erhvervslejemål ligger på Søborg Hovedgade i Søborg. Søborg har postnummeret 2860, og ligger i kommunen Gladsaxe, som ligger i Storkøbenhavn. Lokalet er i alt 104 m2. Lejepris: 94.200 kr. per år.