Foto leveres af Google Street View og kan være upræcist:
Kontor til leje, Støvring, Grangårdscentret
Grangårdscentret, 9530 Støvring- Kontor til leje
- 24 - 483 m2
Grangårdscentret, 9530 Støvring
- Kontor til leje
- 24 - 483 m2
Få mere info
Du linkes til en anden portal, som evt. kan kræve betaling eller oprettelse
Kontor til leje, Støvring, Grangårdscentret
Udlejning af kontor i Støvring Centrum
Leder du efter et moderne og indbydende kontor i Støvring? I får du dit eget kontorlokale med fællesfaciliteter.
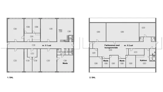
Vi kan tilbyde kontorlokaler i nr. 5 på 1. sal, hvor lokale 1.02 på 48 m² og 1.11B på 24 m² ledige.
Centret er placeret centralt i Støvring, kun få minutter fra motorvejen og mindre end 20 km fra Aalborg, hvilket gør det nemt for både dig og dine kunder at komme til og fra adressen. Og med mere end 100 gratis parkeringspladser lige ved døren slipper du for besværet med p-skiver og betalingsanlæg.
Indenfor finder du lyse fællesområder, et lækkert fælleskøkken med god spiseplads, toiletfaciliteter og et mødelokale, som du frit kan benytte til kundemøder og samarbejdssamtaler.
Kontorlokalerne ligger på 1. og 2. sal. Hele 2. sal er udlejet til Rebild Kommune, mens 1. sal rummer en række forskellige virksomheder.
Vil du høre mere eller se de ledige lokaler? Kontakt os – vi giver gerne en rundvisning.
Vi kan tilbyde kontorlokaler i nr. 5 på 1. sal, hvor lokale 1.02 på 48 m² og 1.11B på 24 m² ledige.
Centret er placeret centralt i Støvring, kun få minutter fra motorvejen og mindre end 20 km fra Aalborg, hvilket gør det nemt for både dig og dine kunder at komme til og fra adressen. Og med mere end 100 gratis parkeringspladser lige ved døren slipper du for besværet med p-skiver og betalingsanlæg.
Indenfor finder du lyse fællesområder, et lækkert fælleskøkken med god spiseplads, toiletfaciliteter og et mødelokale, som du frit kan benytte til kundemøder og samarbejdssamtaler.
Kontorlokalerne ligger på 1. og 2. sal. Hele 2. sal er udlejet til Rebild Kommune, mens 1. sal rummer en række forskellige virksomheder.
Vil du høre mere eller se de ledige lokaler? Kontakt os – vi giver gerne en rundvisning.
Information og data
Dette erhvervslejemål ligger på Grangårdscentret i Støvring. Støvring har postnummeret 9530, og ligger i kommunen Rebild, som ligger i Region Nordjylland. Lokalet er i alt 483 m2.